Rielt.org

De închiriat comercială Zankovetskoi

Zankovetskoi str., or.Kyiv, Kyivska reg., Ucraina

De închiriat

5 ore
etaj 1 din 5
140 m²

2.000 USD/lună

14 USD/

Prezentare generală

Pardoseală/Număr etaje

1 /5

Descrierea proprietății

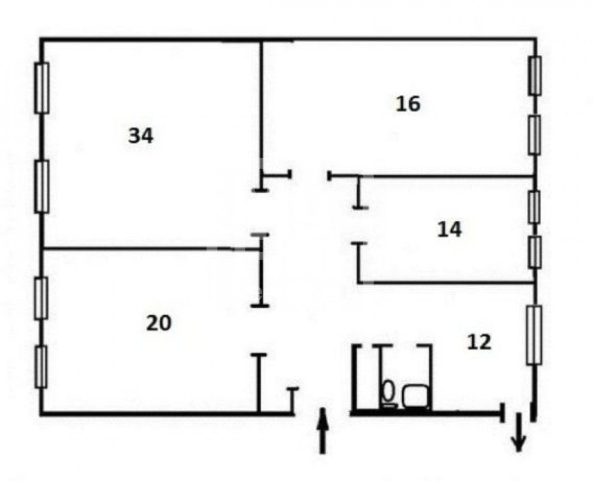
Оренда офісу в урядовому кварталі. Приміщення площею 140 кв. розташоване на першому поверсі будинку, вхід через під'їзд та освою окрему з двору. Офіс складається з: 4-х кабінетів, кухні, с/в та технічної кімнати. Приміщення повністю обладнане меблями, встановлені кондиціонери в кожній кімнаті, стелі Н=4м., сигналізація, парковка (3 авто). Зручна локація: до метро Хрещатик та Майдан Незалежності 5 хвилин ходьби.

Detalii proprietate

ID proprietate

Suprafață totală

35192

140 m²

Adresă/Locația proprietății

Adresă

Oraș/localitate

Regiune

Zankovetskoi str.

or.Kyiv

Kyivska

Cartier/Zonă

Țară

Pecherskyi

Ucraina

Dotări și facilități

Obțineți mai multe informații
Даниленко Влада

Proprietăți similare

Proprietăți similare în această zonă

De închiriat comercială Yevhena Konovaltsia

Yevhena Konovaltsia str.
2.400 USD/pe obiect
1 cameră
165 m²
Печерск, ул. Евгения Коновальца 44а. ЖК «Печерская Панорама». Площадь помещения -117 кв м. Панорамные окна с видом на весь. На территории имеются подземные паркинги. Есть кухня и отдельные кабинеты....

De închiriat comercială Dzhona Makkeina

Dzhona Makkeina str.
2.200 USD/pe obiect
2 camere
166 m²
Печерск, ул. Джона Маккейна 42. Нежилое помещение площадью 166 кв.м, 1/5 этажного дома. Отдельный вход с фасада, 2 выхода во двор, Н = 2.6, офисный ремонт, подвесной потолок, плитка, покраска, сигнал...

De închiriat comercială Kyiv

Naberezhno-Rybalska dr.
1.636 USD/pe obiect
120 m²
Башта 5 - історичний комплекс у центрі Києва, у затишному місці Печерського району. Пам'ятка архітектурного значення XIX століття, що зберегла свій первинний вигляд та функціонує як сучасний бізнес це...

De închiriat comercială Kyiv

Reitarska str.
2.200 USD/pe obiect
100 m²
Сдается видовой офис на Рейтарской,2 возле Св.Софии! 3 отдельные комнаты (большой зал с 3-мя! окнами), кухня-столовая, холл с возможностью обустройства приемной. Свежий ремонт, 3 балкона , статусное...

De închiriat comercială Kyiv

Naberezhno-Rybalska dr.
1.886 USD/pe obiect
166 m²
у БІЗНЕС ЦЕНТРІ БАШТА № 5 У самому центрі столиці пропонуємо офіс 166 кв.м, 500грн/м2. для щоденної мультизадачності вашого бізнесу та вашої команди, який включає: 2 кабінета міні-кухня серверн...

De închiriat comercială Kyiv

Mezhyhirska str.
1.704 USD/pe obiect
130 m²
Киев, в центре Подола, ул. Межигорская, на территории БЦ предлагается новое, полностью оборудованное швейное производство 130м2 + шоурум/склад 90м2 Первый этаж, отдельный вход, охраняемая территория...