Rielt.org

De închiriat comercială Yevhena Konovaltsia

Yevhena Konovaltsia str., or.Kyiv, Kyiv c., Ucraina

De închiriat

1 an în urmă
1 cameră
etaj 13 din 26
165 m²

2.400 USD/pe obiect

15 USD/

Prezentare generală

Nr. camere

1

Pardoseală/Număr etaje

13 /26

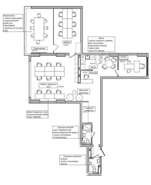
Descrierea proprietății

Печерск, ул. Евгения Коновальца 44а. ЖК «Печерская Панорама». Площадь помещения -117 кв м. Панорамные окна с видом на весь. На территории имеются подземные паркинги. Есть кухня и отдельные кабинеты. Есть холодильник, микроволновая печь, тв, система кондиционирования. Серверная, сан узел,видовая терраса Удобная развязка на основные транспортные магистрали города. Развитая инфраструктура, ст. м. Печерск - 5 минут ходьбы бул. Л, Украинки. Идеальная локация и максимально развитая инфраструктура располагают к успешному ведению бизнеса и комфорту сотрудников. Рядом имеется двух уровневый офис 225М если места будет недостаточно есть возможности объединить два офиса Новый офис с видовой террасой Лучший вид в Киеве.

Detalii proprietate

ID proprietate

Suprafață totală

3969

165 m²

Renovare

bun

Adresă/Locația proprietății

Adresă

Oraș/localitate

Yevhena Konovaltsia str.

or.Kyiv

Țară

Ucraina

Dotări și facilități

Construcție nouă

Obțineți mai multe informații
Валентина

Proprietăți similare

Proprietăți similare în această zonă

De închiriat comercială Dzhona Makkeina

Dzhona Makkeina str.
2.200 USD/pe obiect
2 camere
166 m²
Печерск, ул. Джона Маккейна 42. Нежилое помещение площадью 166 кв.м, 1/5 этажного дома. Отдельный вход с фасада, 2 выхода во двор, Н = 2.6, офисный ремонт, подвесной потолок, плитка, покраска, сигнал...

De închiriat comercială Kyiv

Hrinchenka Mykoly str.
2.490 USD/lună
1 cameră
194 m²
Сдаётся помещения свободного назначения помещение. Соломенский район, улица Гринченко Николая, 2/1 Оренда комерційного приміщення по вулиці Миколи Грінченка, 2/1. На фасаді в бізнес цетрі Вusiness...

De închiriat comercială Kyiv

Truskavetska str.
2.440 USD/lună
2 camere
128 m²
Здається офісне приміщення в Дарницькому районі в ЖК River Stone, біля метро Осокорки (5 хвилин пішки) за адресою: вулиця Трускавецька 6-А. Офіс двоповерховий, з ремонтом. ПЕРША ЗДАЧА! Загальна площ...

De închiriat comercială Kyiv

Bazhana Mykoly bd.
1.929 USD/lună
2 camere
145 m²
Оренда фасадного торгового приміщення під магазин, шоу-рум, клініку, салон, в Дарницькому районі поблизу метро Осокорки, за адресою: проспект Миколи Бажана 12, поруч клініка Добробут. Фасад, 1-й пов...

De închiriat comercială Telihy Oleny

Telihy Oleny str.
1.983 USD/lună
1 cameră
203 m²
Regus Forum West Side розташований за адресою вул. Олени Теліги, 6, на найбільшій столичній магістралі. Зручна локація в пішій доступності від метро та розвинутою інфраструктурою. На території є власн...

De închiriat comercială Sahaidachnoho Petra

Sahaidachnoho Petra str.
2.793 USD/lună
1 cameră
165 m²
Regus Volodymyrsky розташований у самому серці Подолу — на вул. Сагайдачного, 11 з видом на Дніпро, поруч із Річковим вокзалом. Це престижна історична частина міста, що поєднує ділову активність і тв...