Rielt.org

To rent business Simi Prakhovykh

Simi Prakhovykh st., c.Kyiv, Kyivska reg., Ukraine

To rent

2 months ago
5 rooms
flor 5 from 7
296 sq. m

$2,922/month

$10/sq. m

Overview

Num. of rooms

5

Floor/Floors

5 /7

Property Description

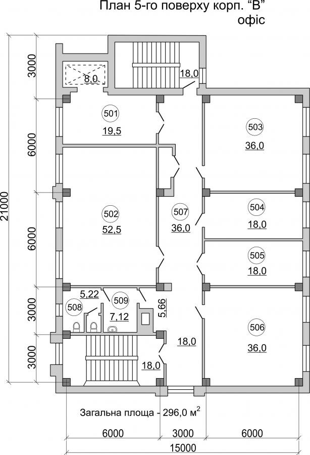
Долгосрочная аренда офиса в центре Киева, Гайдара 22, Микрорайон Паньковщина, Голосеевского района. Площадь 296 м.кв (5 кабинетов, 2 санузла) весь 5 этаж корпуса В.

Нежилой фонд. Высота потолков: 2.8м .

Есть все необходимые офисные коммуникации: автономное отопление! (своя автономная котельная); система центральной вентиляции; центральное кондиционирование; кондиционирование всего этажа с возможностью теплоподачи; 2 телефонные линии; 5 телефонных пар/этаж; 6 провайдеров; 2 лифта (пасс. и груз. лифт); охран. и пожар. сигнализация, видеонаблюдение; паркинг.

Цена аренды: 10$ кв.м/месяц и коммунальными услугами.

Помещение после выезда арендаторов в хорошем состоянии.

Орендная ставка 118 400 грн.

Property Details

Property ID

Total area

31781

296 sq. m

Address/Location of the property

Address

City/sett.

State

Simi Prakhovykh st.

c.Kyiv

Kyivska

Country

Ukraine

Features & Amenities

Get More Information
Жанна Буяновская

You watched

See All Properties

Similar properties

Similar properties in this area

To rent business Profesora Pavlovskoho

Profesora Pavlovskoho st.
$2,383/per property
6 rooms
250 sq. m
250 кв.м. ( за БОМА) Кабінетна система, 2 поверх Будівлі (права частина) Ціна: 420 грн. за 1 кв.м. (Без комісії), окремо оплата комунальних платежів 2 санвузли Безкоштовний паркінг Довгостроков...

To rent business Kyiv

Klovskyi dsc.
$2,500/month
6 rooms
230 sq. m
Пропонується сучасний офіс із панорамними вікнами та захопливим видом на Київ. Простір світлий, із великою кількістю природного світла та високими стелями у стилі loft. Функціональне планування: пр...

To rent business Kyiv

Irynynska st.
$3,000/month
5 rooms
350 sq. m
Оренда офісу 350 м² у центрі Києва, вул. Ірининська. Просторий офіс у стилі Loft з якісним ремонтом після орендаря, готовий до роботи. Підійде для IT-компанії, інвестиційної компанії, креативної студі...

To rent business Kyiv

Khvylovoho Mykoly st.
$2,505/month
5 rooms
230 sq. m
Аренда комерческого помещения по улице Хвылевой, 1, Массив: Красный Хутор, район: Дарницкий. S- 230 кв.м. Первый этаж. Н-3.15 м. Выполнен ремонт. Фасадная входная группа, входная группа со двора, под...

To rent business Kyiv

Khvylovoho Mykoly st.
$2,788/month
5 rooms
273 sq. m
Сдаётся помещение для общественного питания помещение. Дарницкий район, улица Хвылевого Николая, 3А, метро Красный хутор Аренда фасадного помещения по улице Хвылевой, 3, Массив: Красный Хутор, район:...