Rielt.org

For sale apartments Василя Касіяна

Василя Касіяна , c.Kyiv, Kyivska reg., Ukraine

For sale

1 week ago
1 room
flor 6 from 9
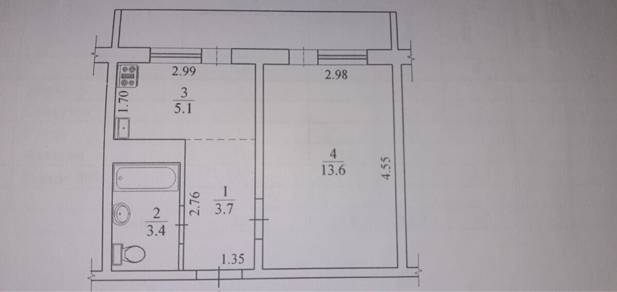
32/24/5 sq. m

$58,900/per property

$1,841/sq. m

Overview

Num. of rooms

1

Floor/Floors

6 /9

Property Description

Продається однокімнатна квартира в Києві! Розташування: Голосіївський район, вул. Василя Касіяна. Загальна площа: 32 кв.м Поверх: 6 з 9 Ця затишна квартира ідеально підходить для молодої сімї або як інвестиція для оренди. Простора кімната, компактна кухня та зручне планування створюють комфортне середовище для життя. У будинку є ліфт, а також розвинута інфраструктура: поряд магазини, кафе, школи та зупинки громадського транспорту.Не пропустіть можливість стати власником чудового житла в одному з найпопулярніших районів Києва!

Property Details

Property ID

Total area

Living area

Kitchen area

31181

32 sq. m

24 sq. m

5 sq. m

Address/Location of the property

Address

City/sett.

State

Василя Касіяна

c.Kyiv

Kyivska

Area

Country

Голосеевский

Ukraine

Features & Amenities

Get More Information
Світлана Савушкіна

You watched

See All Properties

Similar properties

Similar properties in this area

For sale apartments Tatarska

Tatarska st.
$68,000/per property

For sale apartments Kyiv

Maksymovycha Mykhaila st.
$63,000/per property

For sale apartments Kyiv

Kadetskyi Hai st.
$60,000/per property

For sale apartments Kyiv

Маричанская (Бубнова Андрея)
$52,000/per property

For sale apartments Kyiv

Antonova aviakonstruktora st.
$53,000/per property

For sale apartments Kyiv

Hlybochytska st.
$54,000/per property