Rielt.org

For sale apartments Юлії Здановської (Михайла Ломоносова)

Юлії Здановської (Михайла Ломоносова) , c.Kyiv, Kyivska reg., Ukraine

For sale

1 week ago
2 rooms
flor 24 from 25
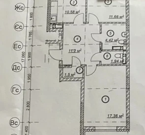
61/37/10 sq. m

$120,000/per property

$1,967/sq. m

Overview

Num. of rooms

2

Floor/Floors

24 /25

Subway

Vasylkivska

Property Description

2-кімнатна квартира, Юлії Здановської вул. (Михайла Ломоносова), 34 Б, Голосіївський район. Метраж 61/37/10, поверховість 24/25.
Продаж Жк 4 сезони
2 кімнати, засклений балкон, гардеробна, роздільний санвузол та кухня.
Вікна виходять на Вднг та у двір. Будинок монолітно-каркасний, утеплений мінватою. Є лічильники тепла, води. Є генератор, ліфт та вода працює при відключені світла. Центральне опалення та водопостачання. У парадному 2 ліфта (вантажний та пасажирський). Має закритий двір зі шлагбаумом, закритий паркінг та укриття.
Квартира розташована за 5 хвилин пішки від станції метро Васильківська. До центру на авто 15 хвилин.
Документам більше 3х років.
Квартира після будівельників.
Сучасний житловий комплекс з розвиненою інфраструктурою, дитячим садком, спортивні та дитячі майданчики. На першому поверсі розташовані комерційні приміщення (аптеки, магазини, нова пошта, кавярні, салони краси, спортивні зали). Можливий торг..
Спеціаліст Ольга

Property Details

Property ID

Total area

Living area

Kitchen area

Balcony

Bathroom

31164

61 sq. m

37 sq. m

10 sq. m

open balcony

separated

Type of rooms

separated

Address/Location of the property

Address

City/sett.

State

Юлії Здановської (Михайла Ломоносова)

c.Kyiv

Kyivska

Area

Country

Голосеевский

Ukraine

Features & Amenities

Get More Information
Ольга Мусатюк

You watched

See All Properties

Similar properties

Similar properties in this area

For sale apartments Yevhena Konovaltsia

Yevhena Konovaltsia st.
$139,900/per property

For sale apartments Sormovska

Sormovska st.
$115,000/per property

For sale apartments Днепровская наб.

Днепровская наб.
$105,000/per property

For sale apartments Kyiv

Peremohy av.
$105,000/per property

For sale apartments Kyiv

Mykhailivska sq.
$120,000/per property

For sale apartments Kyiv

Konieva Marshala st.
$100,000/per property