Rielt.org

Оренда торгово приміщення в ТЦ на 95 кварталі

Horkoho st., c.Kryvyi Rih, Dnipropetrovska reg., Ukraine

To rent

19 hours
456 sq. m

$5/per property

$0/sq. m

Overview

Entrance to the premises

separate

Commer. category

trading

Property Description

Оренда торгово- офісного приміщення в "ТЦ 95 кв."
- Саксаганський район
- пл.95 квартал,10 ( пл. Горького)
- зупинка "95 квартал"
-- кільце "95 квартал"

Технічні характеристики:
- окремо розташована двоповерхова будівля
- 1 та 2 поверхи, після капітального ремонту
- окремий вхід
- власний, закритий двір
- додатковий вхід зі сторони двору

Планування об’єкту:
- загальна площа - 456 кв.м
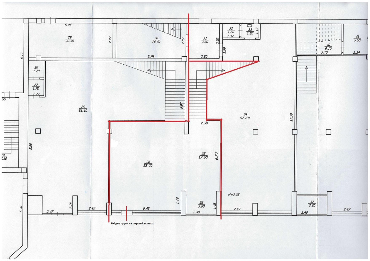
- на першому поверху-70 кв.м
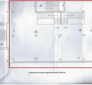
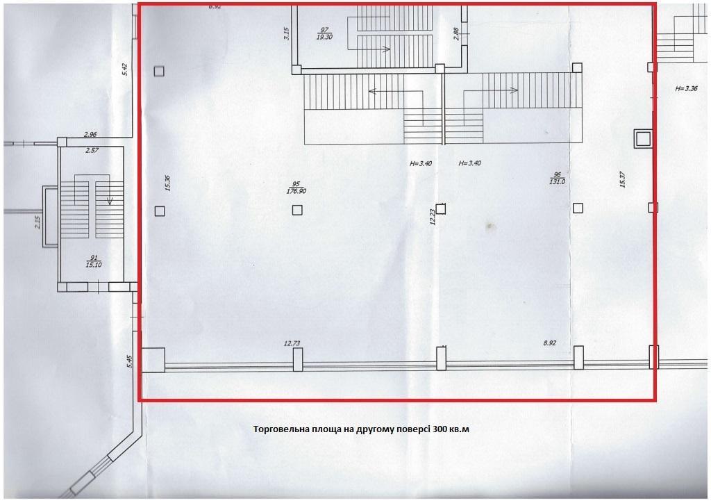
- на другому поверху-386 кв.м
- вільне планування

Комунікації:
- центральне електропостачання
- центральне водопостачання, каналізація
- опалення автономне газове
- кондиціювання
- охоронна, пожежна сигналізації
- відеоогляд по периметру будівлі

Логістична розв’язка:
- будівля розташована по "червоній лінії"
- зупинка "95 квартал"
- парковка, зарядка для електромобілів

Додаткові платежі:
- світло, вода - лічильники
- інтернет, пожежна та охоронна сигналізації
- опалення згідно орендуємої площі
- 50% послуга агенції
Ціна - 200грн/кв.м.

За будь-якими питаннями за цією або іншими пропозиціями звертайтесь за номером телефону 067 696 16 51.
З повагою, команда Credo!

Property Details

Property ID

Total area

Parking type

30371

456 sq. m

ground

Address/Location of the property

Address

City/sett.

State

Horkoho st.

c.Kryvyi Rih

Dnipropetrovska

Area

Country

Саксаганський

Ukraine

Features & Amenities

Get More Information
Агентство недвижимости CREDO

You watched

See All Properties

Similar properties

Similar properties in this area

To rent business Kyiv

Семьи Сосниных
$5/per property

To rent business Понамарёва

Понамарёва
$4/per property

To rent business Kyiv

Связистов
$4/per property

To rent business Kyiv

Магнитогорская
$5/per property

To rent business Kyiv

Дыбенко
$5/per property

To rent business Kyiv

Starokyivska st.
$4/per property