Rielt.org

Продаж пансіонату вул. Льотчиків, р-н пл.Артема

Lotchykiv st., c.Kryvyi Rih, Ukraine

For sale

3 months ago
847 sq. m

$420,000/per property

$496/sq. m

Overview

Entrance to the premises

separate

Commer. category

hotel

Property Description

Продаж пансіонату вул. Льотчиків, р-н пл.В.Великого.

Заклад поєднує комфорт сучасного стилю з атмосферою спокою та домашнього затишку, ідеально підходить для відпочинку та оздоровлення.
Велика зона відпочинку з бесідками та садовими шезлонгами.
На території висаджено 25 різновидностей лікувальних трав.
Зручні під’їздні шляхи, поряд річка, паркова зона.

Технічні характеристики:
- Сучасні номери, кожен з власним дизайнерським стилем
- Обладнанні меблями, технікою та предметами інтер’єру.
- Три входи
- Цоколь - граніт
- Великий хол
- Тераса
- Спортивна зала
- Сольова кімната з Гімолайською сілью
- Роздягальня з душовою
- Міні кінотеатр з фіто баром
- Хамам з джакузі
- Кабінет лікаря
- Пральня
- Зона відпочинку
- Зимовий сад
- Бесідки
- Топочна
- Тротуари вимощені натуральним, гранітним каменем "Брекча"
- Двері натуральне дерево
- Кований паркан
- Меблі під заказ
- Нова криша

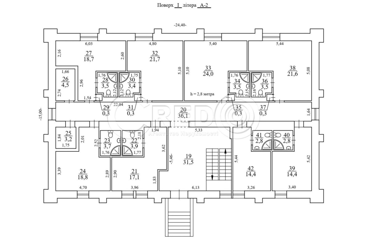
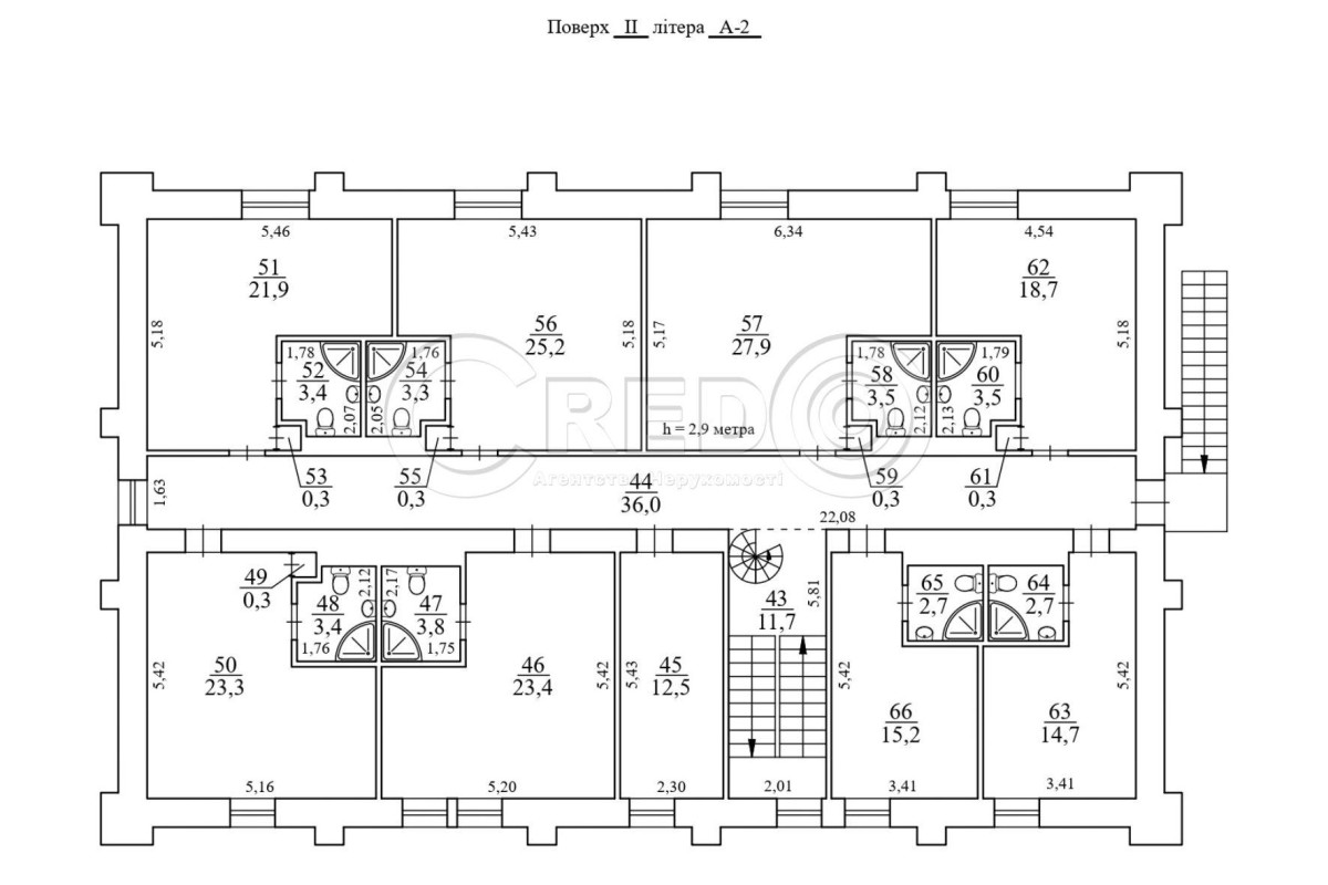
Планування об’єкту:
- Загальна площа – 847.3кв.м.
- Висота стелі – 2.80м.
- Цокольний поверх 280.9кв.м. з терасою
- Перший поверх 254.3кв.м.
- Другий поверх 258.3кв.м.
- Мансарда 53.8кв.м. з терасою

Комунікації:
- Електроенергія - дві фази 380V та 220V,
- Центральне водопостачання.
- Каналізація септик
- Бойлер
- Кондиціонери "Mitsubishi"
- На верхньому поерсі канальний кондиціонер
- Твердопаливний котел "Junkers "- 3шт, дублюючих один одного
- Електро-котел - 3шт дублюючих один одного
- Водяні резервуари
- Пожежна та охоронна сигналізації

Продаж – 420 000$

За будь-якими питаннями за цією або схожими пропозиціями звертайтесь за номером телефону, де вам відповість наш ріелтор 098 985 09 08.

З повагою, команда АН Credo

Property Details

Property ID

Total area

30248

847.3 sq. m

Address/Location of the property

Address

City/sett.

Lotchykiv st.

c.Kryvyi Rih

Area

Country

Саксаганський

Ukraine

Features & Amenities

Get More Information
Агентство недвижимости CREDO

You watched

See All Properties

Similar properties

Similar properties in this area