Rielt.org

Продаж квартири Гурського

Білорусь, Мінськ, вул. Гурського

Продаж

22 години
3 кімнати
поверх 2 з 9
79/47/10 кв. м

160 000 USD/за об’єкт

2 020 USD/кв. м

Загальні характеристики

У кімнат

3

Поверх/Поверховість

2 /9

Опис нерухомості

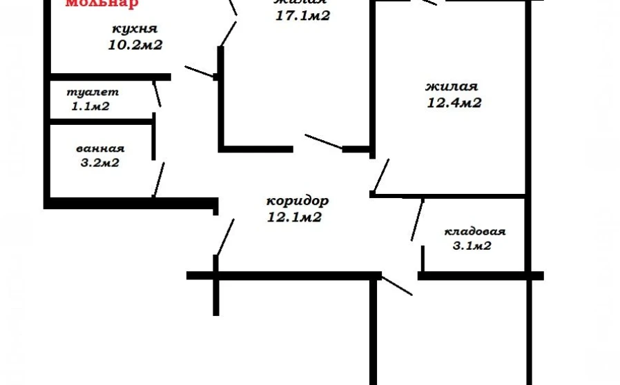
Продается трехкомнатная квартира всего в 5 минутах от метро Михалово!
Роскошная планировка: 3 изолированных комнаты, кладовая, и кухня площадью 10.2 м²-мечта любой хозяйки!
Вся необходимая инфраструктура в шаговой доступности!

ООО «МОЛЬНАР» на основании: лицензии Министерства юстиции Республики Беларусь № 02240/11 выдана 17.02.2005г., УНП 101107535

Деталі про нерухомість

ID нерухомості

Загальна площа

Житлова площа

Площа кухні

Ванна кімната

34833

79.2 кв. м

46.6 кв. м

10.2 кв. м

відокремлені

Адреса/Місцезнаходження об’єкта

Адреса

Місто/н.п.

вул. Гурського

Мінськ

Район/мкр.

Країна

Фрунзенський

Білорусь

Особливості та зручності

Отримати більше інформації

Подібні об'єкти нерухомості

Подібні об'єкти в цьому районі

Продаж квартири Мінськ

Мінськ, вул. Франциска Скорини
165 751 USD/за об’єкт
4 кімнати
82/50/5 кв. м
Просторная четырехкомнатная квартира с панорамным видом на город в ЖК "Маяк Минска". ул.Ф.Скорины, 5 Окна на две стороны света. Три высокоскоростных бесшумных лифта Otis, консьерж, видеонаблюдение...

Продаж квартири Мінськ

Мінськ, вул. Мстиславця Петра
174 208 USD/за об’єкт
3 кімнати
93/54/10 кв. м
Просторная трехкомнатная квартира в ЖК "Маяк Минска". ул. П.Мстиславца, 10 Окна на две стороны света. Три высокоскоростных бесшумных лифта Otis, просторное лобби, консьерж, видеонаблюдение 24/7. Р...

Продаж квартири Мінськ

Мінськ, вул. Франциска Скорини
133 415 USD/за об’єкт
4 кімнати
78/50/5 кв. м
Просторная четырехкомнатная квартира с панорамным видом на город в ЖК "Маяк Минска". ул.Ф.Скорины, 5 Окна на две стороны света. Три высокоскоростных бесшумных лифта Otis, консьерж, видеонаблюдение...

Продаж квартири Неміга

Мінськ, вул. Неміга
185 514 USD/за об’єкт
3 кімнати
76/61/33 кв. м
Продажа 3-х комнатной квартиры общей площадью 75,72м2 в новом строящемся жилищном комплексе повышенной комфортности Маэстро в квартале улиц Немига – Коллекторная – К. Цеткин. Седьмой этаж. Высота пото...

Продаж квартири Мінськ

Мінськ, просп. Незалежності
165 000 USD/за об’єкт
4 кімнати
97/70/10 кв. м
Продаётся уютная светлая 4-х комнатная квартира в центре столицы, рядом со станцией метро "Парк Челюскинцев" по проспекту Независимости,111. Прекрасное, всегда актуальное место как для жизни, так и дл...

Продаж квартири Мінськ

Мінськ, вул. Макаєнка
135 246 USD/за об’єкт
3 кімнати
91/37/14 кв. м
! Трехкомнатная квартира в ЖК "Парк Челюскинцев". ул.Макаенка,12 Д Развитая инфраструктура: уютный двор с современной детской площадкой. Парк Челюскинцев, круглосуточно поставляющий вкусный сосновы...