Rielt.org

Продаж квартири Набережно-Хрещатицька

Україна, м.Київ, вул. Набережно-Хрещатицька

Продаж

1 день
1 кімната
поверх 1 з 5
49/15/19 кв. м

174 960 USD/за об’єкт

3 571 USD/кв. м

Загальні характеристики

У кімнат

1

Поверх/Поверховість

1 /5

Опис нерухомості

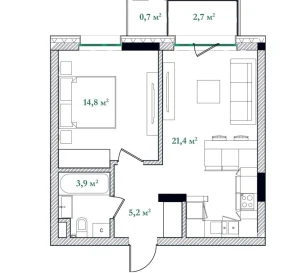
Продам 1 кімнатну квартиру, ЖК Illinsky House, Поділ, вул. Набережно-Хрещатицька, 21, Подільський район, Поштова площа, Річний вокзал.

Площа 48,6/15/21м, 2/5 поверх
Новобудова бізнес-класу. Будинок зданий у серпні 2024р.

Панорамні вікна, виходять у двір.
Чудове планування: велика кухня-вітальня 21,4м, окрема спальня, є балкон, с/в сумісний.

Квартира у стані після будівельників – прекрасна можливість втілити дизайнерські мрії у ремонті за своїм смаком!
Висота стелі – 3 м

3-5 квартир на поверсі, 2 ліфти, один з яких спускатиметься у підземний паркінг.
Якісне будівництво: монолітно-каркасна технологія, стіни – червона цегла, утеплення мінватою.
Підземний паркінг.
Внутрішній дворик.

ЖК Illinsky House має два будинки в стилі неокласики, що гармонійно вписуються в природний та урбаністичний контекст історичного центра Києва. В оздобленні фасадів домінують вишукані натуральні матеріали — натуральний камінь, керамограніт, декоративна цегла. натуральними матеріалами провідних світових виробників: сірий матовий вапняк JURA
GREY (Німеччина), вапняк білий матовий CALIZA CAPRI L (Іспанія), цегла керамічна неглазурована Feldhaus Klinker (Німеччина), елегантна плитка Graniti Fiandre (Італія).

Супер локація: поряд Дніпро, набережна, кафе, ресторани, Іллінська церква, парк.
5 хвилин до 2 станцій метро: Поштова площа та Контрактова площа.

Є можливість розстрочки до 3 років. Перший внесок – від 30%.

Спеціаліст Світлана

Деталі про нерухомість

ID нерухомості

Загальна площа

Житлова площа

Площа кухні

Балкон

Ванна кімната

34550

49 кв. м

15 кв. м

19 кв. м

відкритий балкон

суміщений

Адреса/Місцезнаходження об’єкта

Адреса

Місто/н.п.

Область

вул. Набережно-Хрещатицька

м.Київ

Київська

Район/мкр.

Країна

Подільський

Україна

Особливості та зручності

Ліфт

Отримати більше інформації
Світлана Савушкіна

Подібні об'єкти нерухомості

Подібні об'єкти в цьому районі

Продаж квартири Київ

м.Київ, Белокур Екатерины
150 000 USD/за об’єкт

Продаж квартири Київ

м.Київ, вул. Антоновича
185 000 USD/за об’єкт

Продаж квартири Київ

м.Київ, вул. Радченка Петра
150 000 USD/за об’єкт

Продаж квартири Київ

м.Київ, Коновальця Євгена
165 000 USD/за об’єкт

Продаж квартири Київ

м.Київ, Коновальця Євгена
190 000 USD/за об’єкт

Продаж квартири Київ

м.Київ,  
159 000 USD/за об’єкт