Rielt.org

Продаж квартири Наддніпрянське

Україна, м.Київ, Наддніпрянське

Продаж

4 дні
1 кімната
поверх 20 з 24
45/18/20 кв. м

66 000 USD/за об’єкт

1 467 USD/кв. м

Загальні характеристики

У кімнат

1

Поверх/Поверховість

20 /24

Опис нерухомості

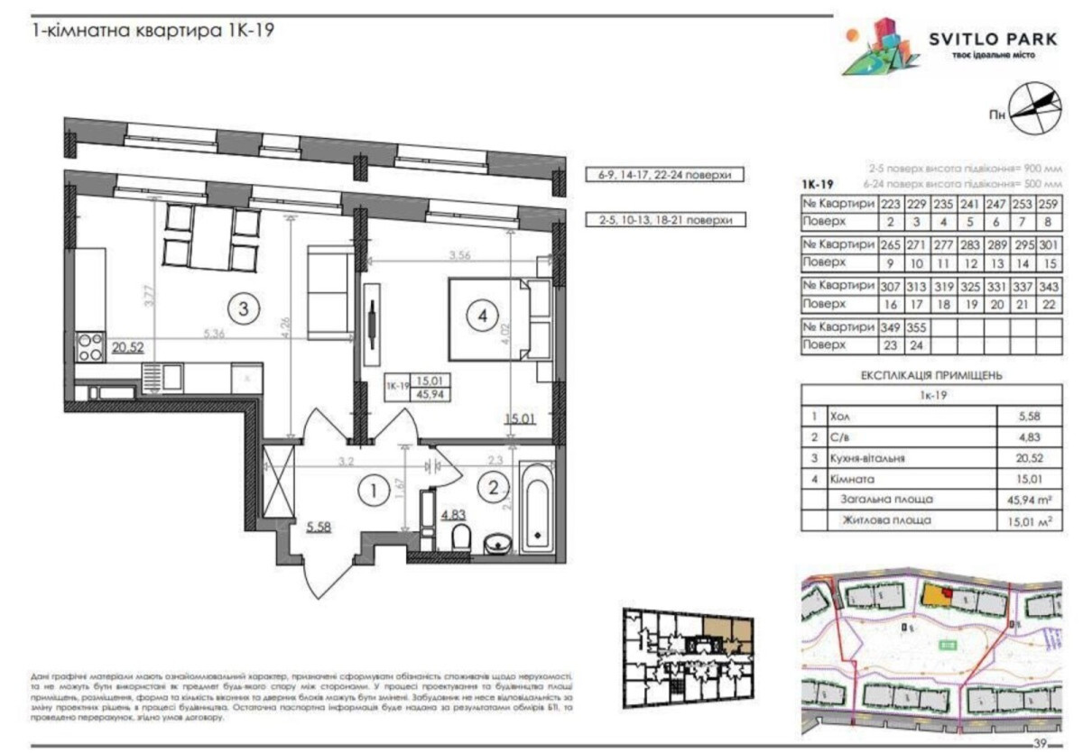
1-кімнатна квартира, Наддніпрянське шосе, 2а, Голосіївський район. Метраж 45/18/20, поверховість 20/24.
ЖК Svitlo Park, Світлопарк, 1к. квартира,є оселя.
Будинок прийнятий, квартира в 6 будинку, 20 поверх і шикарний вид на Дніпро, 45 кв м
в будинку паркінг і відповідно бомбосховище.
10 хвилин пішки до затоки Дніпра та пляжу - Галера. До станціі метро Видубичі - 10 хвилин пішим ходом, до центру міста - 10 хвилин на авто.
Стан - після будівельників. Виконані всі чорнові роботи. Вікна засклені, встановлені вхідні двері - металеві, надійні та стильні, не потребуютьь заміни. Виконана стяжка підлоги під лазер, під стяжкою розведено водопостачання ,опалення, підключено радіатори з терморегуляторами.
В комплексі передбачена своя інфраструктура : пропускна система цілодобової охорони, магазини продуктові, аптеки, спортивний клуб, ресторан, дитячі садочки та державна школа, медичний заклад; зона відпочинку з дітьми, прогулянкова зона, паркінг підземний та гостьовий.
Спеціаліст Ольга

Деталі про нерухомість

ID нерухомості

Загальна площа

Житлова площа

Площа кухні

Балкон

Ванна кімната

34294

45 кв. м

18 кв. м

20 кв. м

відкритий балкон

суміщений

Тип кімнат

роздільні

Адреса/Місцезнаходження об’єкта

Адреса

Місто/н.п.

Область

Наддніпрянське

м.Київ

Київська

Район/мкр.

Країна

Голосеевский

Україна

Особливості та зручності

Ліфт

Отримати більше інформації
Ольга Мусатюк

Подібні об'єкти нерухомості

Подібні об'єкти в цьому районі

Продаж квартири Київ

м.Київ, Наддніпрянське
61 970 USD/за об’єкт

Продаж квартири Київ

м.Київ, Наддніпрянське
58 000 USD/за об’єкт

Продаж квартири Ревуцького

м.Київ, вул. Ревуцького
65 000 USD/за об’єкт

Продаж квартири Причальна

м.Київ, вул. Причальна
75 000 USD/за об’єкт

Продаж квартири Регенераторная

м.Київ, Регенераторная
65 000 USD/за об’єкт

Продаж квартири Мишуги Олександра

м.Київ, вул. Мишуги Олександра
75 000 USD/за об’єкт