Rielt.org

Продаж квартири Вишгородська

Україна, м.Київ, Вишгородська

Продаж

2 тижня тому
3 кімнати
поверх 25 з 27
94/40/36 кв. м

130 000 USD/за об’єкт

1 383 USD/кв. м

Загальні характеристики

У кімнат

3

Поверх/Поверховість

25 /27

Опис нерухомості

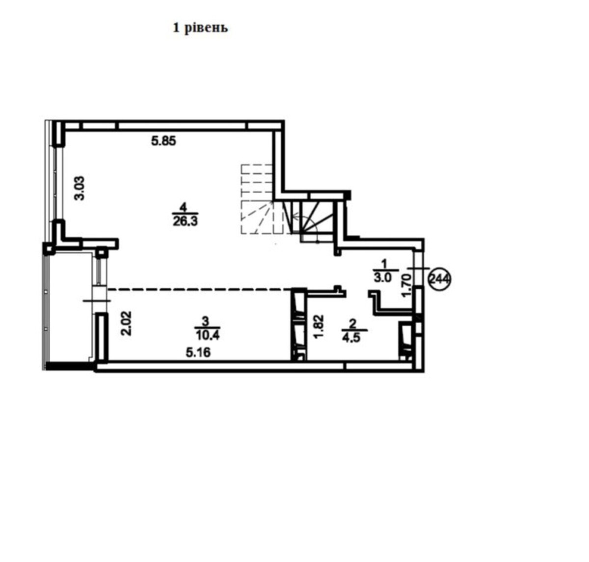
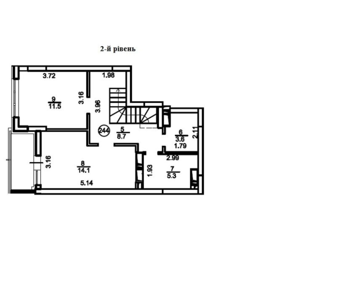
Продам шикарну 3х кімнатну квартиру ЖК Паркове Місто вул. Вишгородська 45 Г. Площа квартири 94м2 - двохрівнева із прекрасним видом на парк. Розташовується на 25-26 поверхах. 1 поверх вміщує велику кухню студію 38м2 + балкон 3.8м2 який можна об‘єднати, санузл, коридор. 2 й поверх - дві кімнати (спальня, дитяча), гардеробна, санузл, + ще один великий балкон. Сходи залиті. Індивідуальні лічильники тепла, електрики води, світла, не високий тариф за прибудинкову територію. У комплексі одна з найкращих закритих територій в Києві для життя, дитячі майданчики, зелений ландшафт, підземні паркінги, два озера, футбольне, баскетбольне поле, два тенісні корти, чудова паркова зона із заповідником. Чудова інфрастуктура : безліч салонів красоти, магазинів, супермаркет Вапус одразу біля центрального входу, цілодобова охорона усієї території. 4 ліфти відомої фірми Schindler (швидкісні та тихі). 25 сек і ви дома. Будинок зданий в експлуатацію 2022р, всі документи на руках без ремонту..Вид обєкта: Новобудова;Тип будинку: Житловий фонд від 2021 р.;Назва ЖК: Паркове місто;Тип стін: Цегляний;Клас житла: Бізнес;Планування: Багаторівнева;Cанвузол: 2 і більше;Опалення: Централізоване;Ремонт: Після будівельників;Меблювання: Ні;Комфорт: Відеоспостереження, Кондиціонер, Грузовий ліфт, Балкон, лоджія, Ванна, Консерж, Ліфт, Пожежна сигналізація, Підземний паркінг, Панорамні вікна, Охорона території;Комунікації: Асфальтована дорога, Центральна каналізація, Електрика, Вивіз відходів, Центральний водопровід;Інфраструктура (до 500 метрів): Відділення банку, банкомат, Кінотеатр, театр, Школа, Магазин, кіоск, Супермаркет, ТРЦ, Зупинка транспорту, Аптека, Лікарня, поліклініка, Дитячий садок, Ринок, Парк, зелена зона, Дитячий майданчик, Відділення пошти, Ресторан, кафе;Ландшафт (до 1 км.): Ліс, Пагорби, Озеро, Парк;

Деталі про нерухомість

ID нерухомості

Загальна площа

Житлова площа

Площа кухні

32253

94 кв. м

40 кв. м

36 кв. м

Адреса/Місцезнаходження об’єкта

Адреса

Місто/н.п.

Область

Вишгородська

м.Київ

Київська

Район/мкр.

Країна

Подольский

Україна

Особливості та зручності

Отримати більше інформації
Агенція нерухомості КУБ

Подібні об'єкти нерухомості

Подібні об'єкти в цьому районі

Продаж квартири Київ

м.Київ, Вишгородська
135 000 USD/за об’єкт

Продаж квартири Київ

м.Київ, Вишгородська
127 000 USD/за об’єкт

Продаж квартири Київ

м.Київ, Вишгородська
150 000 USD/за об’єкт

Продаж квартири Київ

м.Київ, просп. Перемоги
105 000 USD/за об’єкт

Продаж квартири Київ

м.Київ, Григоренко Петра
110 000 USD/за об’єкт

Продаж квартири Київ

м.Київ, Тимошенко Маршала
130 000 USD/за об’єкт