Rielt.org

Продаж квартири Регенераторна

Україна, м.Київ, вул. Регенераторна

Продаж

3 місяць тому
3 кімнати
поверх 9 з 9
82/39/39 кв. м

170 000 USD/за об’єкт

2 073 USD/кв. м

Загальні характеристики

У кімнат

3

Поверх/Поверховість

9 /9

Метро

Дарниця

Опис нерухомості

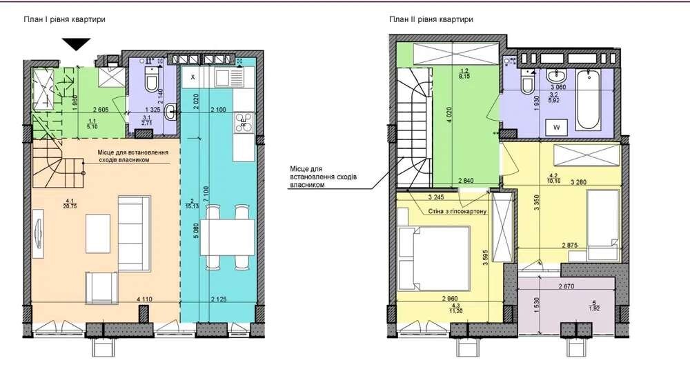
Продається 3-кімнатна квартира з ремонтом у ЖК Комфорт Таун, Київ, Дніпровський район

Пропонуємо до продажу простору трикімнатну квартиру у Києві за адресою: вулиця Регенераторна, 4/16, ЖК Комфорт Таун. Це затребуваний комплекс у Дніпровському районі, що славиться своєю інфраструктурою, безпекою та сучасним середовищем для життя.

Квартира двоповерхова, загальною площею 82 м . На першому рівні кухня-студія з зоною відпочинку та санвузлом. На другому дві окремі спальні, ще один санвузол і лоджія. Встановлено індивідуальні лічильники на тепло, воду та електроенергію. Є тепла підлога, кондиціонери в усіх кімнатах, сучасна побутова техніка, меблі все входить у вартість.

Житловий комплекс зданий і активно...

Деталі про нерухомість

ID нерухомості

Загальна площа

Житлова площа

Площа кухні

31828

82 кв. м

39 кв. м

39 кв. м

Адреса/Місцезнаходження об’єкта

Адреса

Місто/н.п.

Область

вул. Регенераторна

м.Київ

Київська

Країна

Україна

Особливості та зручності

Отримати більше інформації
Галия Кавалерова

Подібні об'єкти нерухомості

Подібні об'єкти в цьому районі

Продаж квартири Регенераторна

м.Київ, вул. Регенераторна
153 000 USD/за об’єкт
3 кімнати
86 кв. м
№ 55387 Продаж трикімнатноі квартири в ЖК Комфорт Таун. 1 поверх (високий перший поверх). 86м2 Планування: простора кухня-вітальня, 2 окремі кімнати , санвузол (ванна і душ), окрема пральна, гардер...

Продаж квартири Срібнокільська

м.Київ, вул. Срібнокільська
150 000 USD/за об’єкт
3 кімнати
100/57/15 кв. м
Позняки, продается просторная трехкомнатная квартира в ЖК Корона. Площадь 100 метров, два санузла, расположена на 6м этаже, дом комфорт класса, 2008 года, с подземным паркингом, свой жек, ухоженная п...

Продаж квартири Євгена Сверстюка

м.Київ, вул. Євгена Сверстюка
149 000 USD/за об’єкт
3 кімнати
72 кв. м
Продаж 3к квартири біля м. Лівобережна та Русанівської набережної Євро три-кімнатна квартира: велика кухня-вітальня (21,2мкв), спальня з гардеробною, дитяча/кабінет, два санвузли та лоджія, гарний ви...

Продаж квартири Дніпровська

м.Київ, наб. Дніпровська
144 000 USD/за об’єкт
3 кімнати
90 кв. м
Квартира в ЖК Seven, в стилі лофт розташована на другому високому поверсі, вікна якого виходять на червону лінію та у двір. У під’їзді є цілодобова охорона та відеоспостереження 24/7, а для додаткової...

Продаж квартири Олександра Олеся

м.Київ, вул. Олександра Олеся
170 000 USD/за об’єкт
3 кімнати
84 кв. м
3 к, Киев, Виноградарь, ул. Александра Олеся 2в. Продам 3к квартиру в ЖК Варшавський, О. Олеся 2В, (8.3). Квартира з функціональним плануванням, яка складається з кухні-вітальні, трьох окремих кімнат,...

Продаж квартири Осокорська

м.Київ, вул. Осокорська
180 000 USD/за об’єкт
4 кімнати
100 кв. м
Предлагается в аренду офисно-жилое помещение с панорамными окнами на правый берег Киева. 3 отдельных кабинеты + оупенспейс. Вокруг прекрасно развита инфраструктура. До метро Славутич 5 минут. Помещ...