Rielt.org

Продаж квартири Квітки Цісик

Україна, м.Київ, вул. Квітки Цісик

Продаж

3 місяць тому
1 кімната
поверх 4 з 5
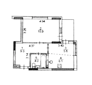
42/16/15 кв. м

52 400 USD/за об’єкт

1 248 USD/кв. м

Загальні характеристики

У кімнат

1

Поверх/Поверховість

4 /5

Опис нерухомості

Продаётся однокомнатная квартира в новам комплексе. Оболонский район, Пуща-Водица, улица Квитки Цисык (Гамарника), 32, площадь 42,3 кв.м., из кухни выход на террасу 5кв.м, 4этаж/5эт. монолитно-каркасного дома, ремонт от строителей, отопление автономное, вода-централизованая, газа нет. Красивый внутренний двор,охрана, сразу за домом зеленая зона с озерами, в пяти минутах хотьбы городской парк. Окна смотрят на лес. Общественным транспортом до метро Академгородок 20 минут.

Деталі про нерухомість

ID нерухомості

Загальна площа

Житлова площа

Площа кухні

31645

42 кв. м

16 кв. м

15 кв. м

Адреса/Місцезнаходження об’єкта

Адреса

Місто/н.п.

Область

вул. Квітки Цісик

м.Київ

Київська

Країна

Україна

Особливості та зручності

Отримати більше інформації
Галия Кавалерова

Подібні об'єкти нерухомості

Подібні об'єкти в цьому районі

Продаж квартири Київ

м.Київ, пров. Приладний
56 000 USD/за об’єкт
1 кімната
44/15/11 кв. м
До вашої уваги пропонується на продаж 1-кімнатна квартира на Академмістечку, за адресою: провулок Приладний 10 / переулок Приборный 10. Житловий комплекс Академ-квартал, побудови 2022 року, класу комф...

Продаж квартири Київ

м.Київ, вул. Обухівська
52 500 USD/за об’єкт
1 кімната
31 кв. м
Продаж 1 кімнатної квартири (студія) в сучасному житловому комплексі "Озерний", Обухівська 137а. Загальна площа 31 кв. Будинок 2019 року будівництва, монолітно-каркасний з утепленням, консьєрж, під'ї...

Продаж квартири Мрії

м.Київ, вул. Мрії
48 000 USD/за об’єкт
2 кімнати
46/30/8 кв. м
Отличная транспортная развязка - до метро Святошин или Сырец - по 4 остановки. Хорошее месторасположение дома, уютный зеленый двор с детской площадкой. Все необходимое для комфортного проживания в шаг...

Продаж квартири Київ

м.Київ, просп. Європейського Союзу
50 000 USD/за об’єкт
1 кімната
41/18 кв. м
Продам однокімнатну квартиру в ЖК Варшавський плюс, Подільський район, вул. Івана Виговського, буд 13., .введений в експлуатацію в 2022 році та присвоєна поштова адреса. Загальна площа квартири -...

Продаж квартири Героїв полку «Азов»

м.Київ, вул. Героїв полку «Азов»
49 000 USD/за об’єкт
1 кімната
30/15/7 кв. м
Продам однокімнатну квартиру Оболонський район, вул. Героів полку Азов (Маршала Малиновського) 28 Б, поруч станція метро Оболонь. Загальна площа квартири - 30 м,кв., кухня 6.5 м. кв. кімната 14.8 м ....

Продаж квартири Київ

м.Київ, вул. Данченка Сергія
53 500 USD/за об’єкт
1 кімната
36/17/9 кв. м
Продаж однокімнатної квартири в ЖК Новомостицько - Замковецький, Подільський район, вул. Сергія Данченка, 34 . Будинок введений в експлуатацію в 2018 році. Загальна площа квартири - 36.3 м,кв., кухня...