Rielt.org

Продаж квартири Михайла Максимовича (Онуфрія Трутенка)

Україна, м.Київ, Михайла Максимовича (Онуфрія Трутенка)

Продаж

8 годин
1 кімната
поверх 8 з 23
43/18/20 кв. м

114 999 USD/за об’єкт

2 674 USD/кв. м

Загальні характеристики

У кімнат

1

Поверх/Поверховість

8 /23

Опис нерухомості

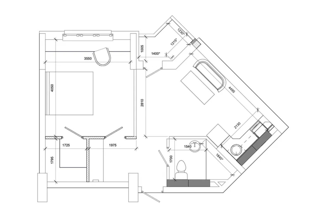
1-кімнатна квартира, Михайла Максимовича вул. (Онуфрія Трутенка), 3г, Голосіївський район. Метраж 43/18/20, поверховість 8/23.
Продам 1-к квартиру. Метро Васильківська, ВДНГ, Голосієво, Продам стильну квартиру з ремонтом у ЖК “4 Сезони”. Вікна у двір.
Простора квартира з дизайнерським ремонтом, виконаним “для себе” із використанням якісних матеріалів та техніки преміум-класу.
Переваги квартири: Генератор на будинок (працюють ліфти, опалення, водопостачання). Ніколи не здавалась в оренду, один власник весь час.
Підлога з корковим утепленням та кварц-вініловим покриттям – завжди тепла та приємна на дотик. Італійська екзотична плитка, сантехніка та змішувачі Hansgrohe. Сучасний унітаз з підігрівом сидіння та функцією гігієнічного підмивання. Кухня з технікою SMEG та BOSCH, включно з усім необхідним для комфортного життя. Італійська гардеробна система та дорогі меблі з натуральних матеріалів. Двухзонний лічильник, бойлер для гарячої вод + вода від міста є також. Броньовані двері, замок Multilock, сигналізація Ajax з датчиками диму та затоплення. Телевізор Panasonic та кондиціонер Panasonic. Унікальний кухонний стіл, що регулює висоту та розкладається вдвічі.
Додаткові переваги: Квартира продається з усіма меблями, технікою та навіть посудом – заходь та живи!
Чудова транспортна розвязка: метро 7 хв пішки, ВДНГ та парк – 15 хвилин. Рядом метро, в будинку є магазини, салони краси, кафе, ресторан і тд..
Спеціаліст Ольга

Деталі про нерухомість

ID нерухомості

Загальна площа

Житлова площа

Площа кухні

Балкон

Ванна кімната

31212

43 кв. м

18 кв. м

20 кв. м

відкритий балкон

відокремлені

Тип кімнат

роздільні

Адреса/Місцезнаходження об’єкта

Адреса

Місто/н.п.

Область

Михайла Максимовича (Онуфрія Трутенка)

м.Київ

Київська

Район/мкр.

Країна

Голосеевский

Україна

Особливості та зручності

Ліфт

Отримати більше інформації
Ольга Мусатюк

Подібні об'єкти нерухомості

Подібні об'єкти в цьому районі

Продаж квартири Київ

м.Київ, Михайла Максимовича (Онуфрія Трутенка)
117 000 USD/за об’єкт

Продаж квартири Київ

м.Київ, Михайла Максимовича (Онуфрія Трутенка)
118 000 USD/за об’єкт

Продаж квартири Київ

м.Київ, Михайла Максимовича (Онуфрія Трутенка)
130 000 USD/за об’єкт

Продаж квартири Жилянська

м.Київ, вул. Жилянська
94 600 USD/за об’єкт

Продаж квартири Днепровская наб.

м.Київ, Днепровская наб.
98 000 USD/за об’єкт

Продаж квартири Михаила Максимовича

м.Київ, Михаила Максимовича
105 000 USD/за об’єкт