Rielt.org

Продаж квартири Юлії Здановської (Михайла Ломоносова)

Україна, м.Київ, Юлії Здановської (Михайла Ломоносова)

Продаж

1 день
2 кімнати
поверх 24 з 25
61/37/10 кв. м

120 000 USD/за об’єкт

1 967 USD/кв. м

Загальні характеристики

У кімнат

2

Поверх/Поверховість

24 /25

Опис нерухомості

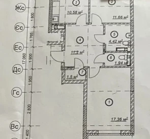
2-кімнатна квартира, Юлії Здановської вул. (Михайла Ломоносова), 34 Б, Голосіївський район. Метраж 61/37/10, поверховість 24/25.
Продаж Жк 4 сезони
2 кімнати, засклений балкон, гардеробна, роздільний санвузол та кухня.
Вікна виходять на Вднг та у двір. Будинок монолітно-каркасний, утеплений мінватою. Є лічильники тепла, води. Є генератор, ліфт та вода працює при відключені світла. Центральне опалення та водопостачання. У парадному 2 ліфта (вантажний та пасажирський). Має закритий двір зі шлагбаумом, закритий паркінг та укриття.
Квартира розташована за 5 хвилин пішки від станції метро Васильківська. До центру на авто 15 хвилин.
Документам більше 3х років.
Квартира після будівельників.
Сучасний житловий комплекс з розвиненою інфраструктурою, дитячим садком, спортивні та дитячі майданчики. На першому поверсі розташовані комерційні приміщення (аптеки, магазини, нова пошта, кавярні, салони краси, спортивні зали). Можливий торг..
Спеціаліст Ольга

Деталі про нерухомість

ID нерухомості

Загальна площа

Житлова площа

Площа кухні

Балкон

Ванна кімната

30513

61 кв. м

37 кв. м

10 кв. м

відкритий балкон

відокремлені

Тип кімнат

роздільні

Адреса/Місцезнаходження об’єкта

Адреса

Місто/н.п.

Область

Юлії Здановської (Михайла Ломоносова)

м.Київ

Київська

Район/мкр.

Країна

Голосеевский

Україна

Особливості та зручності

Отримати більше інформації
Ольга Мусатюк

Подібні об'єкти нерухомості

Подібні об'єкти в цьому районі

Продаж квартири Київ

м.Київ, Юлії Здановської (Михайла Ломоносова)
112 000 USD/за об’єкт

Продаж квартири Київ

м.Київ, Юлії Здановської (Михайла Ломоносова)
96 000 USD/за об’єкт

Продаж квартири Євгена Коновальця

м.Київ, вул. Євгена Коновальця
139 900 USD/за об’єкт

Продаж квартири Сормовська

м.Київ, вул. Сормовська
115 000 USD/за об’єкт

Продаж квартири Днепровская наб.

м.Київ, Днепровская наб.
105 000 USD/за об’єкт

Продаж квартири Київ

м.Київ, просп. Перемоги
105 000 USD/за об’єкт