Rielt.org

Продаж магазину пр.Університетський

Україна, Дніпропетровська обл., м.Кривий Ріг, вул. Гагаріна

Продаж

3 місяць тому
107 кв. м

190 000 USD/за об’єкт

1 779 USD/кв. м

Загальні характеристики

Вхід до приміщення

окремий

Комерційна категорія

торгівля

Опис нерухомості

Продаж магазину в центрі міста
- пр. Університетський, (97 квартал)
- Саксаганський район

Технічні характеристики:
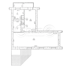
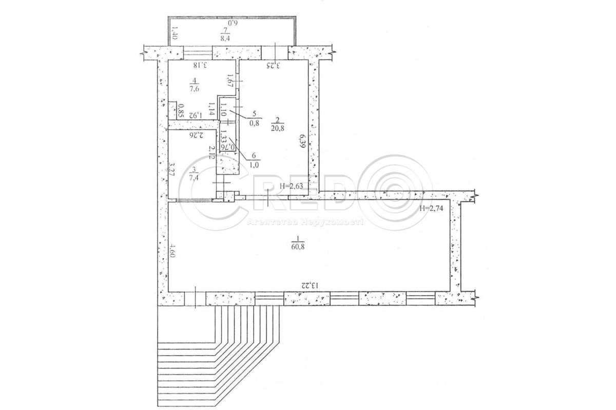
- загальна площа – 106,8 кв.м.
- торгівельний зал площею 60,8 кв.м
- вітражні вікна, красивий фасад
- магазин в гарному стані
- завантажувальний вхід з рампою
- «червона лінія»
- парковка біля приміщення.

Комунікації:
- електроенергія 50 кВт, 380 Вт
- центральне водопостачання та каналізація
- центральне опалення
- охоронна та пожежна сигналізації.
Магазин розташований на головній вулиці міста.
Великий автомобільний та пішохідний трафік.
Гарна локація для Вашого бізнесу.

Ціна продажу- 190 000 у.о.
За будь-якими питаннями за цією або схожими пропозиціями звертайтесь за номером телефону 067 696 16 51.
З повагою, команда Credo!

Деталі про нерухомість

ID нерухомості

Загальна площа

30372

106.8 кв. м

Адреса/Місцезнаходження об’єкта

Адреса

Місто/н.п.

Область

вул. Гагаріна

м.Кривий Ріг

Дніпропетровська

Район/мкр.

Країна

Саксаганський

Україна

Особливості та зручності

Отримати більше інформації
Агентство нерухомості CREDO

Подібні об'єкти нерухомості

Подібні об'єкти в цьому районі

Продаж комерційна Абая Кунанбаєва

м.Київ, вул. Абая Кунанбаєва
155 000 USD/за об’єкт

Продаж комерційна Йорданська

м.Київ, вул. Йорданська
180 000 USD/за об’єкт

Продаж комерційна Метрологічна

м.Київ, вул. Метрологічна
175 000 USD/за об’єкт

Продаж комерційна Зарічна

м.Київ, вул. Зарічна
195 000 USD/за об’єкт

Продаж комерційна Володимирська

м.Київ, вул. Володимирська
200 000 USD/за об’єкт

Продаж комерційна Абая Кунанбаєва

м.Київ, вул. Абая Кунанбаєва
157 000 USD/за об’єкт