Rielt.org

Будинок 96 м2 в КМ «Нова Мрія» Гостомель

Україна, Київська обл., смт.Гостомель

Продаж

6 місяців тому
3 кімнати
1 поверх
96 кв. м

92 500 USD/за об’єкт

964 USD/кв. м

Загальні характеристики

У кімнат

3

Поверх/Поверховість

/1

Опис нерухомості

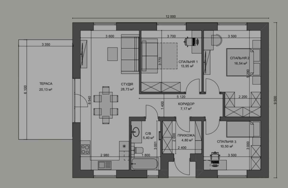
Продається просторий одноповерховий будинок 96 м2 на ділянці 0,04 га у закритому котеджному містечку КМ «Нова Мрія», смт Гостомель, вул. Остромирська.
3 окремі кімнати + велика кухня-студія — сучасне планування для сім’ї.
Гараж, окреме господарське приміщення, критa тераса — максимум комфорту.
Будинок із червоної повнотілої цегли, утеплений пінопластом, виконана чорнова штукатурка стін і лазерна стяжка підлоги — можна заходити на ремонт «під себе».
Проведено всі комунікації: газ, централізована вода та каналізація, електрика 7 кВт (є можливість збільшити).
Облаштована прибудинкова територія + автоматичні ворота — комфорт і безпека.
Закрите, охоронюване (встановлений відеонагляд) котеджне містечко «Нова Мрія» — сучасна забудова в передмісті Києва з усіма перевагами заміського життя.
У котеджному містечку використана технологія: цегла + утеплення пінопластом, індивідуальне опалення — гарантія комфорту й економії. Новобудови+1
Ідеально підходить для родини, яка бажає жити біля Києва, у спокої та затишку, але з сучасним рівнем комфорту.
Не зволікайте — такі варіанти розходяться швидко. Жодних прихованих платежів чи комісій. Телефонуйте зараз - встигни записатись на перегляд! Залишився тільки один будинок.
Ціна 92500$, оформлення за рахунок продавця.

Деталі про нерухомість

ID нерухомості

Загальна площа

29737

96 кв. м

Адреса/Місцезнаходження об’єкта

Місто/н.п.

Область

смт.Гостомель

Київська

Район/мкр.

Країна

Бучанский

Україна

Особливості та зручності

Отримати більше інформації
Олександр

Подібні об'єкти нерухомості

Подібні об'єкти в цьому районі

Продаж будинку Велика Димерка

смт.Велика Димерка
90 000 USD/за об’єкт
3 кімнати
100 кв. м
Продам свій двоповерховий, побудований 2 роки тому будинок в смт Велика Димерка на вул. Відродження. 2 спальні, велика вітальня. Тепла підлога, посудомийка, свердловина, рівна облаштована земельна діл...

Продаж будинку Богуна

с.Нове, вул. Богуна
90 000 USD/за об’єкт
3 кімнати
115 кв. м
Продається будинок с. Нове. 1. стіни газоблок 400. 2. дах бітумна черепиця. 3. фасад утеплений мін.ватою. 4. внутрішні перегородки з цегли. 5. стіни поштукатурені. 6. розведені труби теплої підлоги та...

Продаж будинку Аптечна

с.Нові Петрівці, вул. Аптечна
85 000 USD/за об’єкт
4 кімнати
110/59/13 кв. м
Продается новый дуплекс в коттеджном городке Балатон, Новые Петровцы, 8 км от Киева по отличной трассе, 15 минут до метро Героев Днепра или Петровка. Участок 2,7 сотки, площадь дома 110 кв.м, на перво...

Продаж будинку Авіаторів

м.Бориспіль, вул. Авіаторів
95 000 USD/за об’єкт
4 кімнати
120 кв. м
Продам новий будинок розташований на ділянці 6 соток, загальною площею 120 м2 в два поверхи. Будинок будувався для себе з якісних матеріалів. На ділянці є літня кухня барбекю з хозблоком. Весь перимет...

Продаж будинку Петрівське

с.Петрівське
75 000 USD/за об’єкт
4 кімнати
122 кв. м
Продається 2-поверховий 4-кімнатний будинок площею 122 кв. м в котеджному містечку Вишневий хуторок (с. Петропавлівське). Будівництво завершене восени 2021 року. Будинок побудовано за сучасною канадсь...

Продаж будинку Абрикосова

с.Богданівка, вул. Абрикосова
82 000 USD/за об’єкт
3 кімнати
124 кв. м
Продается свой дом в КГ Новая Богдановка. Закрытая территория коттеджного городка находится под круглосуточной охраной. Улицы освещаются постоянно в ночное время суток. 19 километров до Броваров. и в...