Rielt.org

Оренда двоповерхової будівлі по вул. Купріна

Україна, Дніпропетровська обл., м.Кривий Ріг, вул. Купріна

Оренда

6 місяців тому
433 кв. м

2 USD/за об’єкт

0 USD/кв. м

Загальні характеристики

Вхід до приміщення

окремий

Комерційна категорія

торгівля

Опис нерухомості

Оренда двоповерхової окремо розташованної будівлі по вул. Купріна

Центрально-Міський район
Кіровоградська траса
&"червона лінія&"

Про об’єкт:
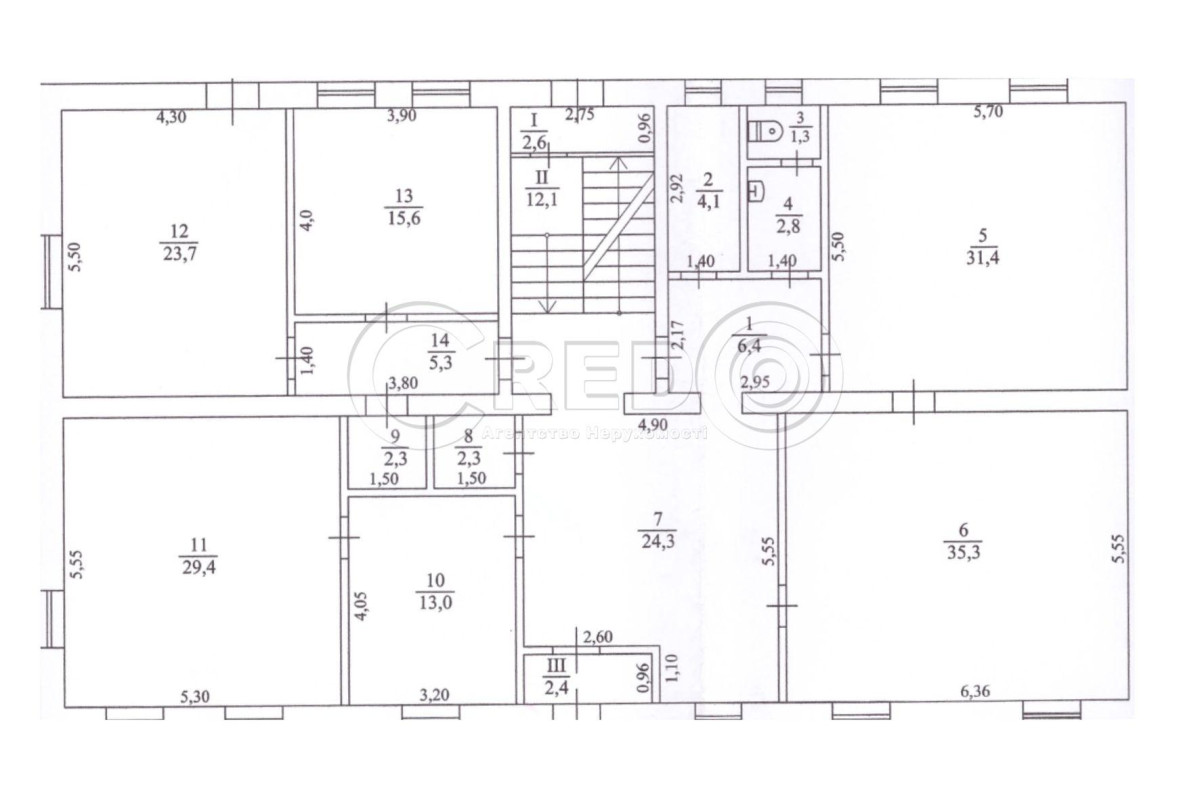
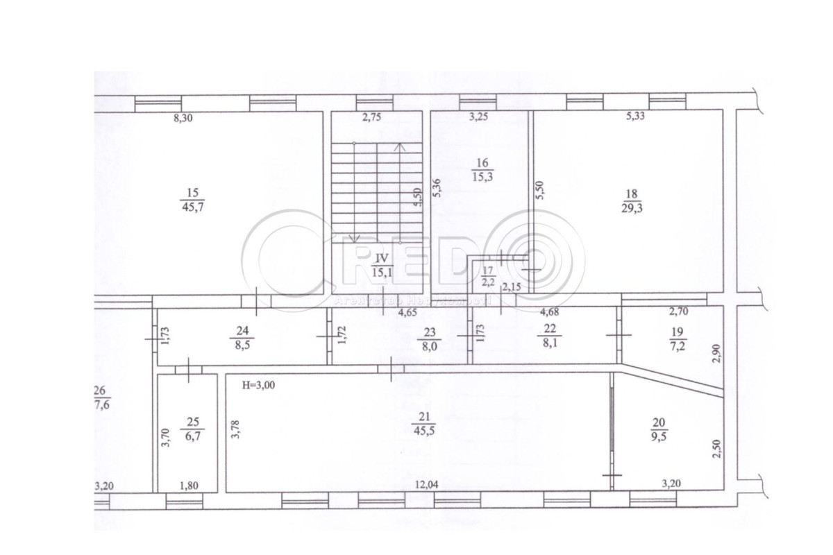
- загальна площа - 433 кв.м
- 1-поверх- 214 кв.м
- 2-поверх- 218 кв.м
- висота стелі- 3 м
- центральний вхід
- оренда по поверхово або повністью
- ремонт під орендаря
- є можливість побудувати складське приміщення за потребою орендаря

Комунікації:
- центральне електропостачання 20 кВт; 380 Вт
- центральне водопостачання, каналізація
- опалення електричне
- кондиціонери
- пожежна, охоронна сигналізації
- велика парковка перед будівлею

Логістична розв’язка:
- розташоване вздовж траси на Київ та Кропивницький
- автомобільний та пішохідний трафік
- зручний під’їзд для великогабаритного транспорту

Додаткові платежі:
- оплата по лічильникам - світло, вода
- інтернет, охорона
- 50% - послуга агенції
Оренда - перший поверх 220грн/кв.м;
другий поверх 100грн/кв.м.

За будь-якими питаннями за цією або схожими пропозиціями звертайтесь за номером телефону 067 696 16 51.

З повагою, команда Credo!

Деталі про нерухомість

ID нерухомості

Загальна площа

29732

433 кв. м

Адреса/Місцезнаходження об’єкта

Адреса

Місто/н.п.

Область

вул. Купріна

м.Кривий Ріг

Дніпропетровська

Район/мкр.

Країна

Особливості та зручності

Отримати більше інформації
Агентство нерухомості CREDO

Подібні об'єкти нерухомості

Подібні об'єкти в цьому районі

Оренда складської будівлі 500 м², м-н Зарічний

м.Кривий Ріг, вул. Електрозаводська
2 USD/за об’єкт
500 кв. м
Оренда окремо розташованої складської будівлі вул.Електрозаводська (АвтоВаз), Покровський район Технічні характиристи: - окрема будівля - огорожена територія - розташовано на території складів...

Оренда комерційна Олексія Косяка

м.Кривий Ріг, вул. Олексія Косяка
3 USD/за об’єкт
410 кв. м
Пропонується в оренду автосервіс вантажної та спецтехніки, загальною площею 410м.кв.- (п'ять гаражних боксів), електроенергія 220/380V. - Центральный бокс пл.85,1кв.м (13,5/6,3), Н- 6,4 м., обладнаний...

Оренда комерційна Соборна

с.Гореничі, вул. Соборна
2 USD/за об’єкт
450
Сдается в аренду склад 450м в Гореничах Закрытая территория, охрана Ровный, бетонный пол. Есть также 280м. № К-954

Оренда комерційна Київ

м.Київ, вул. Віскозна
3 USD/за об’єкт
420
ФАСАДНІ. Склад - ангар. Фасадне місце для складу-магазину або виробництва. Біля Епіцентру. Колишня філія АВТОЛЮКС висота 5м, високі ворота 4х4м, є 380В і 220В, сигналізація, бетонні підлоги, є каб...

Оренда комерційна Якова Гніздовського

м.Київ, вул. Якова Гніздовського
2 USD/за об’єкт
420/150
Склад Ангар 420м для складу, магазину, СТО, виробництва і т.д. на ФАСАДІ сухий неопалюваний, з власним окремим входом і внутрішнім двором 150м, на території, що охороняється складської бази. . Розміри...

Оренда комерційна Святослава Хороброго

м.Київ, вул. Святослава Хороброго
3 USD/за об’єкт
350
Сдам цех под производство. Антипылевой пол, высокие потолки 6м.В черте города народного Ополчения , с расположением удобным для погрузки/разгрузки .