Rielt.org

Оренда приміщення вул. Д.Дудаева (Єсеніна) "96 квартал"

Україна, м.Кривий Ріг, вул. Єсеніна

Оренда

8 місяців тому
130 кв. м

823 USD/за об’єкт

6 USD/кв. м

Загальні характеристики

Вхід до приміщення

окремий

Комерційна категорія

торгівля

Опис нерухомості

Оренда приміщення на "96 кварталі"

Про об’єкт:
- перший поверх 3-х поверхового будинку
- розташований над проїзною частиною
- окремий вхід

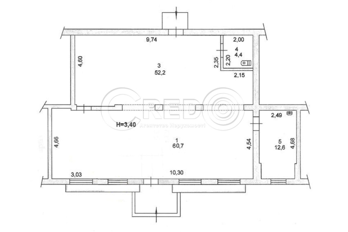
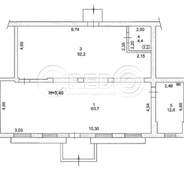
Планування об’єкту:
- загальна площа - 130 кв.м
- торгівельний зал - 113 кв.м
- Н = 3,40 м
- санвузол
- підсобне приміщення

Комунікації:
- центральне електропостачання 5 кВт;
- центральне водопостачання, каналізація
- центральне опалення
- кондиціювання
- пожарна та охоронна системи
- додатковий вхід.

Логістична розв’язка:
- розташоване приміщення на "96 кварталі"
- поряд станція швидкісного трамваю
- пішохідний та проїздний трафік.

Оренда 35000грн ком.послуги
Послуга агенції 50%

За будь-якими питаннями за цією або схожими пропозиціями звертайтесь за номером телефону 067 638 50 54.
З повагою, команда Credo!

Деталі про нерухомість

ID нерухомості

Загальна площа

25371

130 кв. м

Адреса/Місцезнаходження об’єкта

Адреса

Місто/н.п.

вул. Єсеніна

м.Кривий Ріг

Район/мкр.

Країна

Металургійний

Україна

Особливості та зручності

Отримати більше інформації
Агентство нерухомості CREDO

Подібні об'єкти нерухомості

Подібні об'єкти в цьому районі

Оренда приміщення, площа Володимира Великого

м.Кривий Ріг, вул. Мелешкіна
823 USD/за об’єкт

Оренда комерційна Чавдар Єлизавети

м.Київ, вул. Чавдар Єлизавети
705 USD/за об’єкт

Оренда комерційна Київ

м.Київ, вул. Інститутська
799 USD/за об’єкт

Оренда комерційна Київ

м.Київ, вул. Шутова полковника
705 USD/за об’єкт

Оренда комерційна Київ

м.Київ, вул. Круглоуніверситетська
940 USD/за об’єкт

Оренда комерційна Київ

м.Київ, вул. Велика Васильківська
752 USD/за об’єкт