Rielt.org

Оренда комерційна Незалежності Украіни

Україна, м.Кривий Ріг, вул. Незалежності Украіни

Оренда

1 рік тому
поверх 1 з 1
254 кв. м

5 USD/за об’єкт

0 USD/кв. м

Загальні характеристики

Поверх/Поверховість

1 /1

Вхід до приміщення

окремий

Опис нерухомості

Пропонуємо в оренду приміщення в Торговому Комплексі, що розташований по вул. Незалежності України

Про об'єкт:
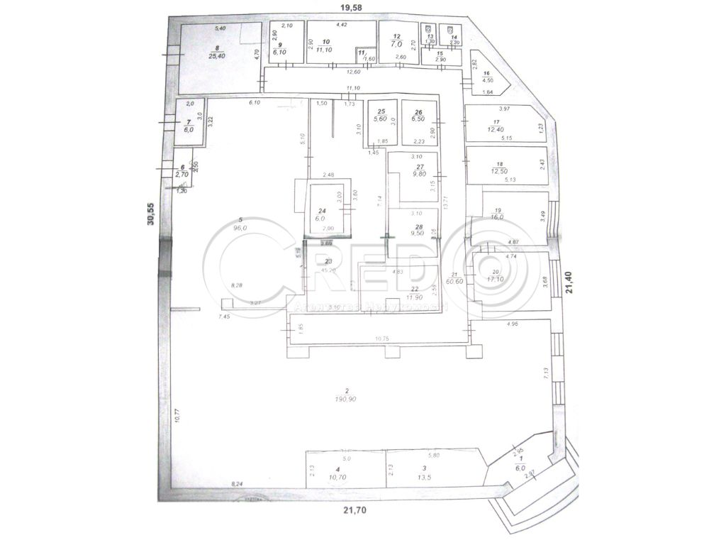
- загальна площа - 254кв.м.
- вільного планування, в хорошому стані,

Комунікації:
- електроенергія - 380V
- автономне газове опалення - відключено
- вода, каналізація
- Інтернет

Локація:
Навпроти супермаркет VARUS, магазини, дитячий садок, поліклініка сімейних лікарів.

Оренда 200грн/кв.м. + комун. платежі.
Послуга агенції 50%.

За будь-якими питаннями за цією або схожими пропозиціями звертайтесь за номером телефону, де вам відповість наш ріелтор Віра 097 541 73 31.

З повагою, команда Credo!

Деталі про нерухомість

ID нерухомості

Загальна площа

2360

254 кв. м

Адреса/Місцезнаходження об’єкта

Адреса

Місто/н.п.

вул. Незалежності Украіни

м.Кривий Ріг

Район/мкр.

Країна

Особливості та зручності

Водопровід

Каналізація

Електропостачання

Отримати більше інформації
Агентство нерухомості CREDO

Подібні об'єкти нерухомості

Подібні об'єкти в цьому районі

Оренда офісу в центрі міста "95 квартал"

м.Кривий Ріг, вул. Ярослава Мудрого
5 USD/за об’єкт
200 кв. м
Оренда офісного приміщення в центрі міста "95 квартал" - Саксаганський район - кільце "95 квартал" - зупинка "95 квартал" Технічні характиристики: - окрема розташована будівля - 4 поверх 4-х п...

Оренда комерційна Київ

м.Київ, шосе Харківське
5 USD/місяць
220
Сдам помещение склада-холодильника площадью 220 м.кв. Есть достаточное количество свободных помещений. В наличии рампа. Возможен заезд фур в шлюзовую часть склада-холодильника. Высота потолка склада 5...

Оренда комерційна Київ

м.Київ, вул. Ушинського
5 USD/за об’єкт
180
Офіс з ремонтом 180м2 Пропонуємо в оренду офіс на першому поверсі з двома входами Площа: 180 м2 Орендна ставка: 220 грн/м2 Етажність: 1 поверх Доступ до офісу 24/7 та цілодобовий відеонаг...

Оренда комерційна Берестейський

м.Київ, просп. Берестейський
5 USD/за об’єкт
300
Склад знаходиться на території комплексу. Є можливість ще зняти офіси різних площ або блоком. На території є офісні приміщення. Офіси від 10 до 500 кв. Склади від 100м. - 650м. Склад...

Оренда комерційна Київ

м.Київ, вул. Межигірська
5 USD/за об’єкт
180
ОФІС 180 М Готовий до зазду У вартість оренди входить: електроенергія, вода, опалення, обслуговування електрика та сантехніка. Бізнес-центр Межигірський знаходиться в Подільському районі Києва....

Оренда комерційна Якова Гніздовського

м.Київ, вул. Якова Гніздовського
5 USD/за об’єкт
187
В оренду пропонуються офіси/торговельні приміщення від 17м2 до 2000м2 у Бізнес-центрі "FIM Center" "B" класу за 10-15 хвилин ходьби від м. Чернігівська. Умови оренди на період воєнного стану: Завд...