Rielt.org

Продажа коммерческая Соломенская

Украина, г.Киев, пл. Соломенская

Продажа

1 год назад
5 комнат
этаж 6 из 9
1000 кв. м

900 000 $/за объект

900 $/кв. м

Общие характеристики

Кол-во комнат

5

Этаж/Этажность

6 /9

Описание недвижимости

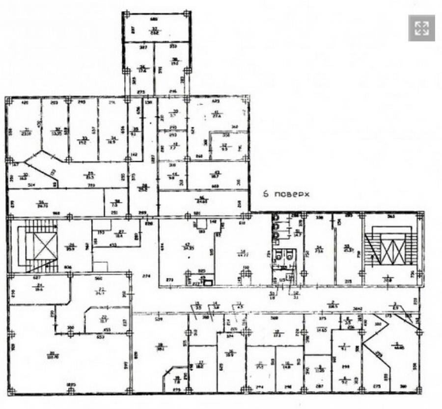
Продам офисное помещение на Соломенской площади.

1 000 м2, выгодный арендный бизнес.

100% помещения сейчас в аренде.

Местоположение: Соломенский район, Соломенская площадь, 2. Большой деловой центр в очень оживленном месте.

Технические характеристики: 1 000 м2, полезная 800м2, 6 этаж (продается весь этаж), два отдельных входа, два санузла, офисный ремонт, частично оборудованы мебелью и кондиционерами, интернет (3 провайдера). Все помещения сейчас сдаются в аренду.

Во дворе есть парковка. Рядом находится Академия МВД, Апелляционный суд г. Киева, парк, супермаркет, рестораны, в здании есть банк.

Отличное транспортное сообщение со всеми концами Киева: до центра 7 минут, до аэропорта или вокзала 5...

Подробности о недвижимости

ID недвижимости

Площадь общая

5447

1000 кв. м

Адрес/Расположение объекта недвижимости

Адрес

Город/н.п.

Область

пл. Соломенская

г.Киев

Киев

Район/мкр.

Страна

Соломенский район

Украина

Особенности и удобства

Получите больше информации
Жанна Буяновская

Похожие объекты недвижимости

Похожие объекты в этом районе