Rielt.org

Оренда нежитлового приміщення. "Даманський"

Украина, Днепропетровская обл., г.Кривой Рог, ул. Адмирала Головко

Аренда

5 часов
50 кв. м

227 $/за объект

5 $/кв. м

Общие характеристики

Вход в помещение

отдельный

Коммерч. категория

свободный

Описание недвижимости

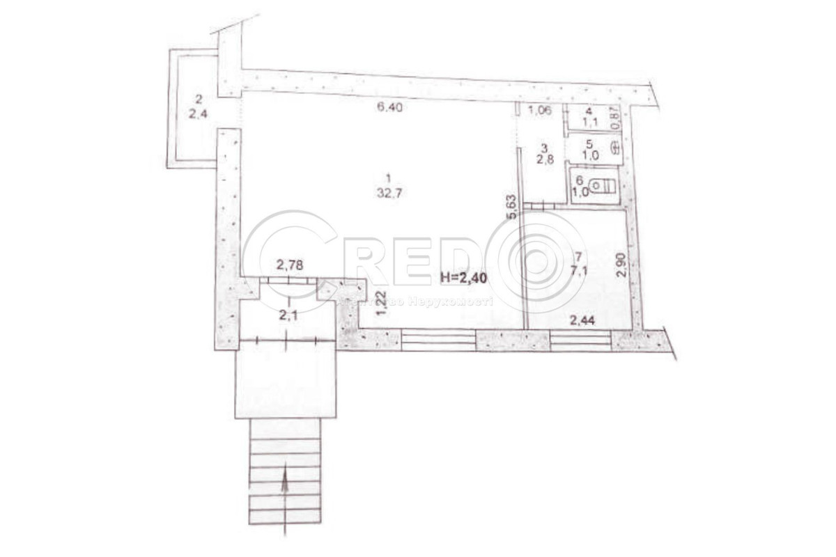
Пропонуємо в оренду об'єкт нежитлового фонду
розташований у Тернівському районі, вул.Героїв Маріуполя,58
(колишня вул.Адмірала Головка).
Приміщення вбудоване. 1 поверх 9типоверхового будинку.
Кутове. Зручно для під'їзду транспорту.
Раніше використовувалось як магазин, салон краси.

Про об'єкт:
- загальна площа 50,2м.кв.
- торгівельний зал 32,7м.кв.
- кабінет 7,1 м.кв.
- підсобні приміщення.
- вхід окремо, сходовий майданчик.
- вода, каналізація.
- без центрального опалення.
- електрика 10 кВт.
- задовільний стан, не великі витрати на оновлення.

Локація:
- зупинка громадського транспору в.Героїв Маріуполя.
- поряд Криворізька Тернівська Гімназія.
- Церква Петра і Февронії УПЦ.

Орендна плата 10 000 грн. Комунальні витрати.
Гарантійний платіж 10 000 грн.
Комісійні АН 50 % одноразово.
За будь-якими питаннями за цією або іншими пропозиціями звертайтесь за номером телефону 067 982 17 19.
З повагою, команда Credo!

Подробности о недвижимости

ID недвижимости

Площадь общая

35257

50.2 кв. м

Адрес/Расположение объекта недвижимости

Адрес

Город/н.п.

Область

ул. Адмирала Головко

г.Кривой Рог

Днепропетровская

Район/мкр.

Страна

Терновский

Украина

Особенности и удобства

Получите больше информации
Агентство недвижимости CREDO

Похожие объекты недвижимости

Похожие объекты в этом районе

Оренда приміщення вул.Космонавтів «Чебурашка»

г.Кривой Рог, ул. Космонавтов
227 $/за объект
40 кв. м
Оренда приміщення вул.Космонавтів, район "Вечірній", «Чебурашка». Технічні характеристики: - Окремо розташована будівля - Приміщення в доброму стані - Стеля амстронг - На підлозі кахель - Вели...