Rielt.org

Продажа квартиры Берестейський (Перемоги)

Украина, г.Киев, Берестейський (Перемоги)

Продажа

14 часов
2 комнаты
этаж 12 из 19
66/15/25 кв. м

108 000 $/за объект

1 636 $/кв. м

Общие характеристики

Кол-во комнат

2

Этаж/Этажность

12 /19

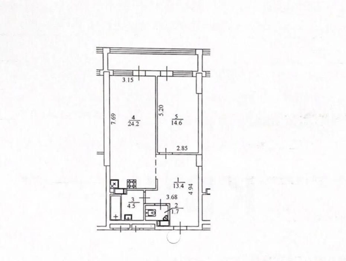
Описание недвижимости

Продам дворівневу 1 кімнатну квартиру, с. Тарасівка, вул. Ярова, 31б
Площа 65/15/24м, 12/19поверх.
Будинок утеплений. Введений в експлуатацію.

Квартира в чорновому стані: Виконана штукатурка та стяжка, мідна електропроводка, встановлені радіатори опалення. Дві лоджії поштукатурені, встановлені склопакети.
Стіни з червоної цегли, утеплені мінеральною ватою.

Чудове розташування: 5хв пішки метро Берестеська, зупинки транспорту.
Спеціаліст Світлана

Подробности о недвижимости

ID недвижимости

Площадь общая

Площадь жилая

Площадь кухни

Балкон

Санузел

35013

66 кв. м

15 кв. м

25 кв. м

открытая лоджия

раздельный

Адрес/Расположение объекта недвижимости

Адрес

Город/н.п.

Область

Берестейський (Перемоги)

г.Киев

Киевская

Район/мкр.

Страна

Соломенский

Украина

Особенности и удобства

Лифт

Получите больше информации
Світлана Савушкіна

Похожие объекты недвижимости

Похожие объекты в этом районе

Продажа квартиры Жилянская

г.Киев, ул. Жилянская
94 600 $/за объект
2 комнаты
48 кв. м
Гарно пропонуємо на продаж затишну комфортну квартиру, з якісним ремонтом та вдалим сучасним плануванням: квартира однокімнатна-студіо має кімнату яка розмежована на зону відпочинку з шкіряним кутовим...

Продажа квартиры Ивана Выговского

г.Киев, ул. Ивана Выговского
89 000 $/за объект
2 комнаты
63 кв. м
Продам 2 кімнатну квартиру ЖК Сирецькі Сади від власника з гарним новим ремонтом. Квартира розташована на 2 невисокому поверсі 24 поверхового будинку. Має ідеальне розташування та гарний ремонт. Ідеал...

Продажа квартиры Хмельницкого богдана

г.Киев, ул. Хмельницкого богдана
115 000 $/за объект
2 комнаты
57/35/10 кв. м
Історичний центр міста, вул. Богдана Хмельницкого, буд. 57 Дім після реконструкції 2 кімнатна квартира 57 м 4/5 поверхового з ліфтом Кухня- студіо та окрема спальня Великий санвузол Гардеробна кімн...

Продажа квартиры Приборный

г.Киев, пер. Приборный
104 000 $/за объект
2 комнаты
60 кв. м
Продам 2 кімнатну квартиру ЖК Академквартал з гарним новим ремонтом . Квартира розташована на 6 невисокому поверсі 24 поверхового будинку. Має ідеальне розташування та новий гарний ремонт. Ідеальна до...

Продажа квартиры Берестейский

г.Киев, просп. Берестейский
105 000 $/за объект
3 комнаты
78/48/15 кв. м
Квартира з якісним ремонтом на 17 поверсі. Стіни будинку виготовлені з керамзито-бетону, у будівлі три ліфти, чисте парадне та є консьерж. Нова вбудована кухня, побутова техніка, паркет виготовлений з...

Продажа квартиры Киев

г.Киев, пл. Михайловская
120 000 $/за объект
3 комнаты
62 кв. м
Метро "Майдан Незалежності" - 300м Метро "Хрещатик" - 900м Метро "Театральна" - 1км Переваги квартири: 1. Будинок із цегли. Безпека, довговічність, збереження тепла взимку. 2. Близькість до мет...