Rielt.org

Продаж нежитлового приміщення. "Червона"

Украина, Днепропетровская обл., г.Кривой Рог, ул. Криворожстали

Продажа

4 часа
43 кв. м

319 $/за объект

7 $/кв. м

Общие характеристики

Вход в помещение

общий

Коммерч. категория

офис

Описание недвижимости

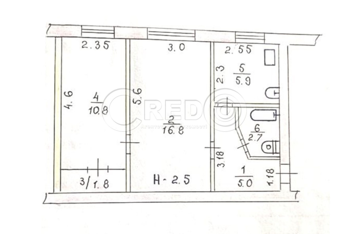
Пропонується до продажу вбудоване нежитлове приміщення
(склад) в районі вокзалу "Червона" по вулиці Криворіжсталі,9.

Будинок в самому центрі мікрорайону "Червона", Металургійний
район. Поряд транспортна розв'язка вокзалу, завод.

Перший поверх будівлі зайнятий виключно комерційними
об'єктами. Є можливість придбання сусіднього приміщення
для збільшеня площі (офісне приміщення).

Про об'єкт:
- 1 поверх 5типоверхового будинку.
- загальна площа 43 м.кв.
- приміщення 16.8 + 10.8 + 5.9 м.кв.
- зараз обаднаний і використовується як склад.
- вхід з під'їзду.
- всі приміщення виходять у двір.
- вікна захищенні металічними ставнями.

Ціна продажу 14 000$.
Розглянемо ваші пропозиції.
За будь-якими питаннями за цією або іншими пропозиціями звертайтесь за номером телефону, де відповість наш ріелтор 067 982 17 19.

З повагою, команда Credo!

Подробности о недвижимости

ID недвижимости

Площадь общая

34325

43 кв. м

Адрес/Расположение объекта недвижимости

Адрес

Город/н.п.

Область

ул. Криворожстали

г.Кривой Рог

Днепропетровская

Район/мкр.

Страна

Металургійний

Украина

Особенности и удобства

Получите больше информации
Агентство недвижимости CREDO

Похожие объекты недвижимости

Похожие объекты в этом районе