Rielt.org

Продаж окремо розташованої будівлі м-н 5-Зарічний

Украина, Днепропетровская обл., г.Кривой Рог, мкр. Кондрата Вишневского

Продажа

1 месяц назад
117 кв. м

27 000 $/за объект

230 $/кв. м

Общие характеристики

Вход в помещение

отдельный

Коммерч. категория

торговля

Описание недвижимости

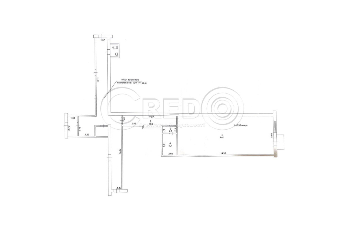
Нежитлове приміщення в торговому комплексі вільного призначення з окремим входом.

Технічні характеристики:
- Приміщення знаходиться в доброму стані
- Стіни під фарбування
- На підлозі кахель
- Встановлені решітки
- Кондиціонер

Планування об’єкту:
- Загальна площа – 117.41кв.м.,
- Велика простора зала
- кабінет, комора, санвузол
- Висота стелі 2.96м

Комунікації:
- Електроенергія 380V, 20кВт
- Центральне водопостачання та каналізація

Локація:
- Великий житловий масив
- Парковка біля приміщення.
- Великий пішохідний трафік

Продаж – 27 000$
За будь-якими питаннями за цією або схожими пропозиціями звертайтесь за номером телефону, де вам відповість наш ріелтор Надія 098 985 09 08.

З повагою, команда CREDO!

Подробности о недвижимости

ID недвижимости

Площадь общая

34324

117.4 кв. м

Адрес/Расположение объекта недвижимости

Адрес

Город/н.п.

Область

мкр. Кондрата Вишневского

г.Кривой Рог

Днепропетровская

Страна

Украина

Особенности и удобства

Получите больше информации
Агентство недвижимости CREDO

Похожие объекты недвижимости

Похожие объекты в этом районе

Продаж торгівельного приміщення, 44 Квартал

г.Кривой Рог, ул. Мусоргского
25 000 $/за объект
100 кв. м
Продаж торгівельного приміщення, Покровський район, вул. Мусоргського Діючий магазин одягу. Технічні характеристики: - 1 поверх 4 поверхового житлового будинку - Загальна площа 100кв.м. - Дві т...

Продажа коммерческая Кривой Рог

г.Кривой Рог, ул. Криворожстали
30 500 $/за объект
138 кв. м
Пропонуємо на продаж магазин з.пл. - 138,8кв. Приміщення розташоване по «червоній лінії». Зупинка 15 школа. Центральне опалення відрізане; світло - 380V; с/вузол, водопостачання - центральне; висота...

Продажа коммерческая Победы

г.Килия, ул. Победы
27 500 $/за объект
13 комнат
136 кв. м
БЕЗ КОМІСІЇ ДЛЯ ПОКУПЦЯ. Загальна площа приміщення 136,7 м2 за адресою: м. Кілія, вул. Перемоги, буд. 2а, приміщення №112. Приміщення розташовані на першому поверсі багатоквартирного житлового будинк...

Продажа коммерческая Дружбы

с.Жукин, ул. Дружбы
25 000 $/за объект
4 комнаты
130 кв. м
Продаётся производственное помещение помещение. Киевская область, Вышгородский район , Жукин, улица дружби, 1 Продам помещение производственное складское, 130м2 + бетонная капитальнаяплащадка 150м2 (...