Rielt.org

Продаж магазину, вул. Миколи Світальського, 15

Украина, Днепропетровская обл., г.Кривой Рог, ул. Николая Світальського

Продажа

1 месяц назад
814 кв. м

175 000 $/за объект

215 $/кв. м

Общие характеристики

Вход в помещение

отдельный

Коммерч. категория

торговля

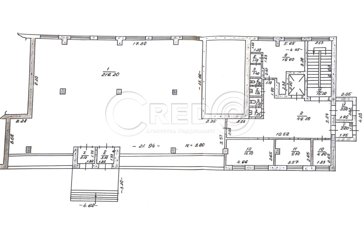
Описание недвижимости

Продаж продуктового магазину
- Покровський район
- вул.Миколи Світальського
- зупинка &"Молодіжна&"
- &"червона лінія&"

Технічні характеристики:
- перший поверх 9-ти поверхового житлового будинку
- центральний та завантажувальний входи
- приміщення в робочому станні
- велика фасадна площа
- збоку місце для парковки

Планування об’єкту:
- загальна площа - 814кв.м
- перший поверх - 333кв.м
- підвальне приіщення - 480кв.м

Комунікації:
- опалення центральне відрізане
- центральне електропостачання 30кВт; 380Вт
- центральне водопостачання, каналізація
- пожежна, охорона сигналізації
- кондиціонер

Логістична розв’язка:
- приміщення розташоване в великому спальному районі
- поруч зупинки громадського транспорту
- супермаркет &"АТБ&", &"Варус&", аптеки та безліч інших магазинів
- великий автомобільний та пішохідний трафік

В магазині діючі орендарі, це отримання доходу з першого дня володіння.
Продаж 175 000у.о.

За будь-якими питаннями за цією або іншими пропозиціями звертайтесь за номером телефону 067 696 16 51.
З повагою, команда Credo!

Подробности о недвижимости

ID недвижимости

Площадь общая

34323

814 кв. м

Адрес/Расположение объекта недвижимости

Адрес

Город/н.п.

Область

ул. Николая Світальського

г.Кривой Рог

Днепропетровская

Район/мкр.

Страна

Покровский

Украина

Особенности и удобства

Получите больше информации
Агентство недвижимости CREDO

Похожие объекты недвижимости

Похожие объекты в этом районе

Продажа коммерческая Ватутина

г.Кривой Рог, ул. Ватутина
185 000 $/за объект
571 кв. м
Специальное предложение от АН «Credo» продажа «Orbitaclub» Кривой Рог Если хотите начать свой бизнес и ищите помещение под ресторан или клуб, кинотеатр, то это предложение точно для Вас! «Orbitaclu...

Продажа коммерческая Кривой Рог

г.Кривой Рог, вул. Серафимовича
190 000 $/за объект
688 кв. м
Продаж будівлі по вул. Серафимовича (ринок Довгинцівський) Технічні характеристики: - загальна площа - 688,7 кв. м. - одноповерхова цегляна будівля на три фасадні входи з великим торговим залом к...

Продажа коммерческая Киев

г.Киев, ул. Алматинская
165 000 $/за объект
1000 кв. м
Продаж: склад ангар площею 1000м2. Окрема територія, склад утеплений, металевий ангар. Два рівні, цокольний поверх та ангар зверху. Залізнична гілка поруч. Якщо сторони не мають претензій одна до одн...

Продажа коммерческая Полтава

г.Полтава, ул. Пищевиков
140 000 $/за объект
600 кв. м
База, СТО,смотровые ямы, несколько офисных и складских помещений,газ,вода. Тип объекта: помещение (часть здания) Кол-во помещений: 5 Этаж: 2 Этажность: 2 Участок: 0.5 гектар состояние: хорош...

Продажа коммерческая Полтава

г.Полтава, ул. Зеньковская
204 488 $/за объект
849 кв. м
Предлагается к продаже отдельно стоящее административное здание Предлагается к продаже отдельно стоящее административное здание общей площадью 849,4 кв. м. (два этажа – 572,7 кв. м. плюс подвал – 276,...