Rielt.org

Аренда коммерческая Княжий Затон

Украина, г.Киев, ул. Княжий Затон

Аренда

1 месяц назад
2 комнаты
этаж 1 из 9
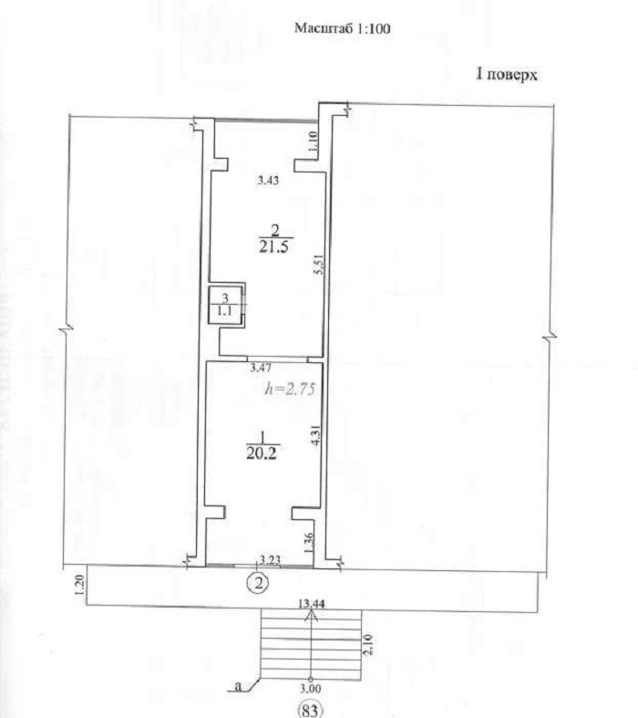
43 кв. м

841 $/месяц

20 $/кв. м

Общие характеристики

Кол-во комнат

2

Этаж/Этажность

1 /9

Описание недвижимости

Сдаётся торговое помещение помещение. Дарницкий район, улица Княжий Затон, 12, метро Осокорки

Фасадне приміщення 42,8 м Княжий Затон, 12. Ідеальна локація! Планування для будь-якого вашого бізнесу! Панорамний вхід, активний трафік, поруч школа та зупинка.

- Площа: 42,8 м ;
- Висота стелі: 2,75 м;
- Потужність електроенергії: 15 кВт;
- Готовий ремонт;
- Зручне планування легко адаптувати під будь-який вид діяльності;
- Є вода, каналізація, індивідуальні лічильники;
- Укладені договори з усіма комунальними службами.

Зроблений якісний ремонт. Приміщення повістю готове до експлуатації. Заходь і працюй!

Переваги розташування:
- Прямо біля Київської інженерної гімназії
- Навколо численні житлові комплекси з...

Подробности о недвижимости

ID недвижимости

Площадь общая

34319

43 кв. м

Адрес/Расположение объекта недвижимости

Адрес

Город/н.п.

Область

ул. Княжий Затон

г.Киев

Киевская

Район/мкр.

Страна

Дарницкий

Украина

Особенности и удобства

Получите больше информации
Ольга Дикая

Похожие объекты недвижимости

Похожие объекты в этом районе

Аренда коммерческая Киев

г.Киев, ул. Заречная
791 $/месяц
2 комнаты
46 кв. м
Здам в оренду офісне приміщення в Дарницькому районі, масив Осокорки в новому ЖК "Славутич " за адресою: вулиця Зарічна, 2 корпус 1, метро Славутич до п 'яти хвилин пішки. Офіс загальною площею 46,2...