Rielt.org

Продаж складського комплексу на "Смичці"

Украина, Днепропетровская обл., г.Кривой Рог, ул. Окружная

Продажа

2 недели назад
3720 кв. м

100 $/за объект

0 $/кв. м

Общие характеристики

Вход в помещение

отдельный

Коммерч. категория

склад

Описание недвижимости

Продаж складського комплексу вул. Окружна "Смичка"
- м.Кривий Ріг
- Центрально Міський район
- вул.Окружна,3

Технічні характеристики:
- окремо разтошована капітальна будівля
- знаходиться на території складів
- склад в робочому стані
- офісні приміщення, с/вузол, роздягальня для персоналу
- котельня
- гараж
- рампа
- парковка біля складу

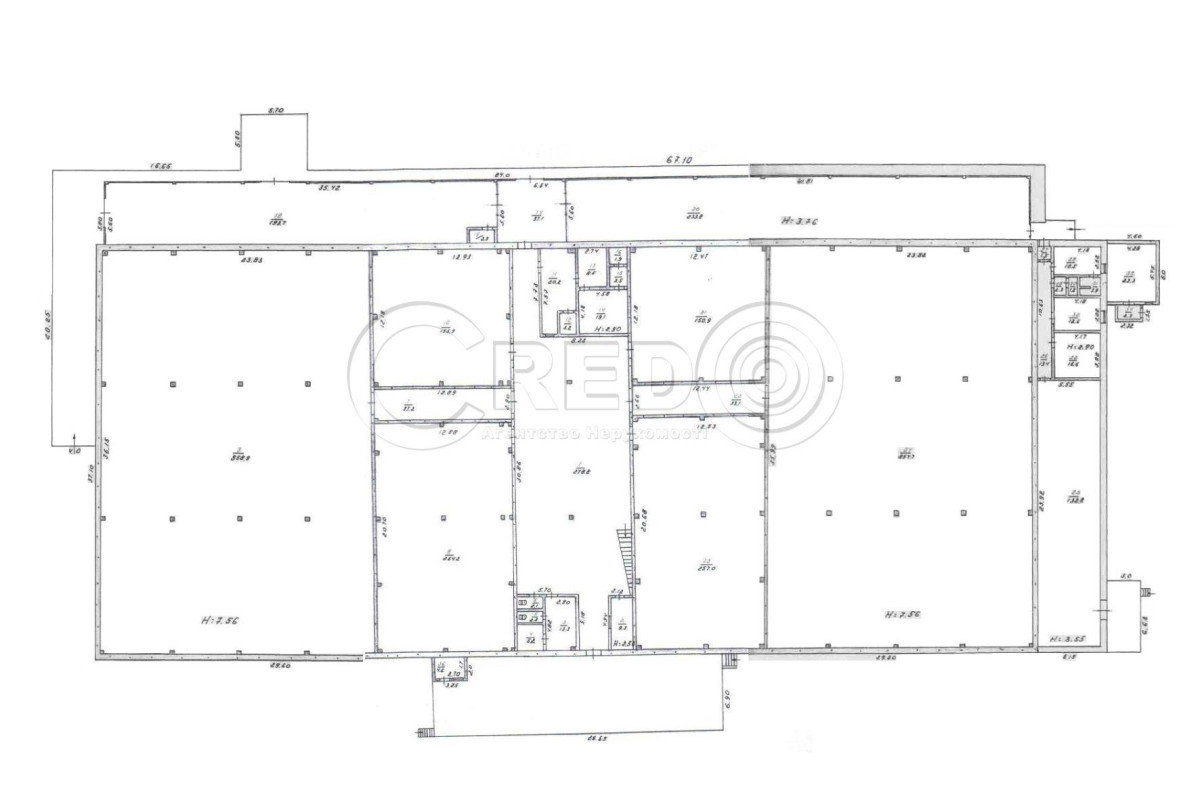
Планування об’єкту:
- загальна площа -3720 кв.м
- гараж-123 кв.м
- земельна ділянка-5886 кв.м

Комунікації:
- опалення - твердопаливний котел (опаленя офісних приміщень)
- центральне електропостачання 30кВт; 380 Вт
- центральне водопостачання, каналізація
- охоронна сигналізація
- кондиціонери в офісах

Логістична розв’язка:
- приміщення розташоване в промисловій зоні
- поруч зупинки громадського транспорту
- виїзд на Кіровоградську трасу
Продаж 100 у.о./кв.м

За будь-якими питаннями за цією або іншими пропозиціями звертайтесь за номером телефону 067 696 16 51.
З повагою, команда Credo!

Подробности о недвижимости

ID недвижимости

Площадь общая

32294

3720 кв. м

Адрес/Расположение объекта недвижимости

Адрес

Город/н.п.

Область

ул. Окружная

г.Кривой Рог

Днепропетровская

Район/мкр.

Страна

Центрально-Міський

Украина

Особенности и удобства

Получите больше информации
Агентство недвижимости CREDO

Похожие объекты недвижимости

Похожие объекты в этом районе