Rielt.org

Продаж будинку 95 квартал. Саксаганський р-н.

Украина, Днепропетровская обл., г.Кривой Рог, ул. Светлова

Продажа

2 месяца назад
5 комнат
2 этажа
123/2 сотка

25 000 $/за объект

203 $/сотка

Общие характеристики

Кол-во комнат

5

Этаж/Этажность

/2

Описание недвижимости

Пропонуємо до продажу будинок (незавершене будівництво)
в районі 95 кварталу, вул.Григорія Синиці (раніше Свєтлова).
Вигідне розташування - центр міста, але тиха, спокійна вулиця.

Домоволодіння створено на основі проєкту &"котедж на 4 власника&". Споруда повністю новобуд! Будівництво велось
за сучасними технологіями.

Про об'єкт:
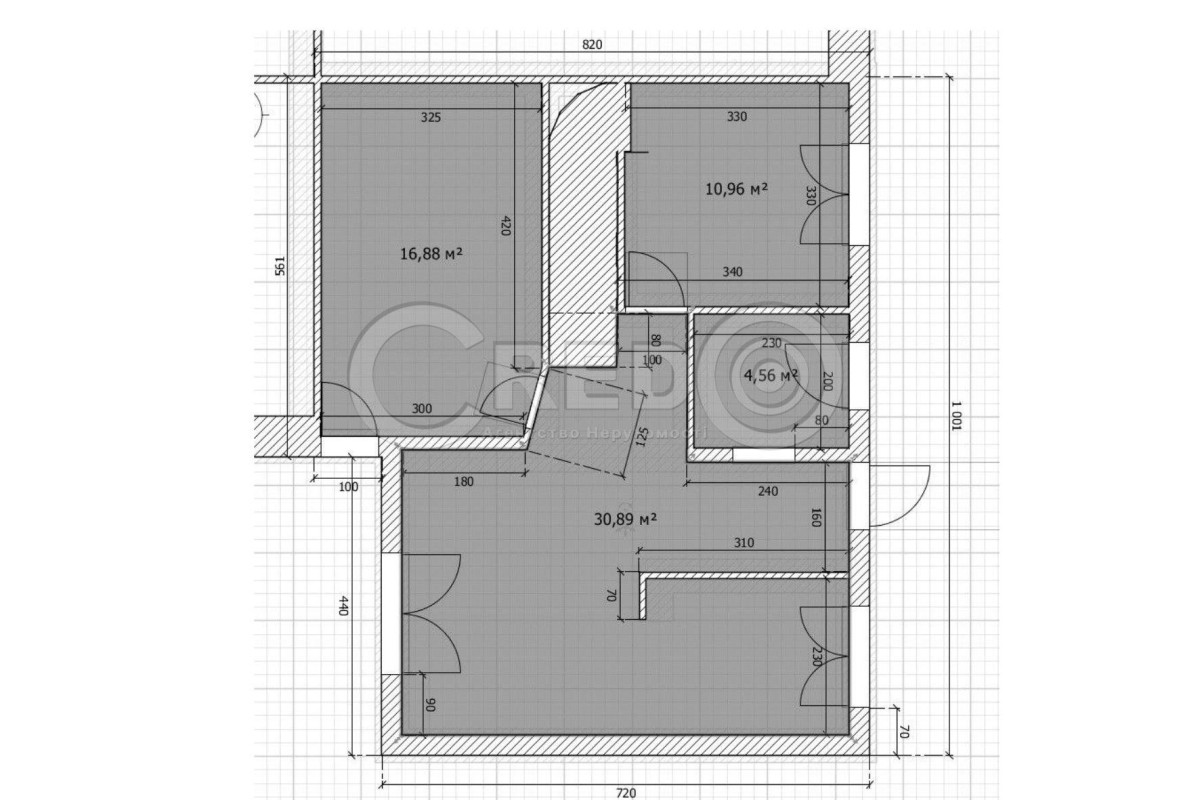
- загальна площа 123м.кв.
- 2 поверхи без оздоблювальних робіт.
- підведені всі комунікації : газ, вода, електрика.
- дах металочерепиця.
- стіни пенобетон.
- капітальний армований фундамент.
- перекриття бетон, дерев'яні балки.
- земельна ділянка 2 сотки.

Планування об'єкту:
- 1 поверх 63 м.кв.вільного планування.
- 2 поверх 66 м.кв.вільного планування.
- заплановано балкон.
- вигідно розташована будівля відносно сусідів
(суміжні стіни) - економія землі!

Локація:
- будинок розташовано на розі вулиць Г.Синиці - Героїв УПА
(Волосевича)
- 1 хвилина до проїжджої вулиці Я.Мудрого (О.Брозовського)
- 2 хвилини до площі 95 квартал.
- 2 хвилини до в.Д.Дудаєва (Єсеніна)

Ціна продажу 25 000$
Розглянемо ваші пропозиції. Різні умови продажу.
За будь-якими питаннями за цією або схожими пропозиціями звертайтесь за номером телефону, де вам відповість наш ріелтор 067 982 17 19.

З повагою, команда CREDO!

Подробности о недвижимости

ID недвижимости

Площадь общая

Площадь участка

32136

123 сотка

2 сотка

Адрес/Расположение объекта недвижимости

Адрес

Город/н.п.

Область

ул. Светлова

г.Кривой Рог

Днепропетровская

Район/мкр.

Страна

Особенности и удобства

Новостройка

Свободная планировка

Водопровод

Газоснабжение

Канализация

Электроснабжение

Получите больше информации
Агентство недвижимости CREDO

Похожие объекты недвижимости

Похожие объекты в этом районе

Будинок двоповерховий продам в Березані

г.Березань,  
28 000 $/за объект
5 комнат
112 кв. м
Продається двоповерховий будинок в садовому товаристві "Ягідка" в Березані, в районі села Недра. Загальна площа будинку 112 кв.м. На 1 поверсі - коридор, туалет і душова, кухня-їдальня та спальня. На...

Продам дачу 6 сот, 5 кімнат, Христиновка (Хоминка) Одеська область

с.Фоминка,  
20 000 $/за объект
5 комнат
110 кв. м
Продам дачу. Христиновка (Хоминка), Одеська область, київська траса. Земельна ділянка 6 сот. Два поверхи, 5 кімнат, підземний гараж з двома додатковими кімнатами, літня кухня/вагончик, криниця, туале...

Продажа дома Базарная

г.Верхнеднепровск, ул. Базарная
27 000 $/за объект
5 комнат
130/100/12 кв. м
Продам большой дом в самом центре Верхнеднепровска или обменять на квартиру в Верхнеднепровске или Днепре (с доплатой). Дом со всеми удобствами (вода, газ, свет, отопление), имеются хоз постройки, вин...

Продажа дома Каролино-Бугаз

с.Каролино-Бугаз,  
20 000 $/за объект
5 комнат
120/60/18 кв. м
Продам кирпичный 2-х этажный дом в курортном районе Одесской области, Каролино Бугаз (Затока), в кооперативе Каролино, ул. Цветочная, дом 310. Дом поштукатурен внутри, снаружи под расшивку. Площадь...

Продажа дома Каролино-Бугаз

с.Каролино-Бугаз,  
20 000 $/за объект
5 комнат
120/60/18 кв. м
Продам кирпичный 2-х этажный дом в курортном районе Одесской области, Каролино Бугаз (Затока), в кооперативе Каролино, ул. Цветочная, дом 310. Дом поштукатурен внутри, снаружи под расшивку. Площадь...

Продажа дома Плахтиевка

с.Плахтиевка,  
20 000 $/за объект
5 комнат
128 кв. м
Продается двухэтажный дом (новостройка) в живописном месте на Юге Украины в селе Плахтиевка. 90км от Одессы; 50км от моря; 6км от р-н центра. Село большое и развитое, с населением 6000 и человек, на т...