Rielt.org

Оренда магазину, Соцмісто, вул. Соборності

Украина, Днепропетровская обл., г.Кривой Рог, просп. Героев Мариуполя

Аренда

2 месяца назад
42 кв. м

159 $/за объект

4 $/кв. м

Общие характеристики

Вход в помещение

отдельный

Коммерч. категория

свободный

Описание недвижимости

Пропонуємо в оренду магазин на Соцмісті по вул. Соборності, поруч із ТК «Піраміда». Локація з активним пішохідним трафіком ідеально підходить для роздрібної торгівлі, сфери послуг, шоуруму та ін.

Технічні характеристики:
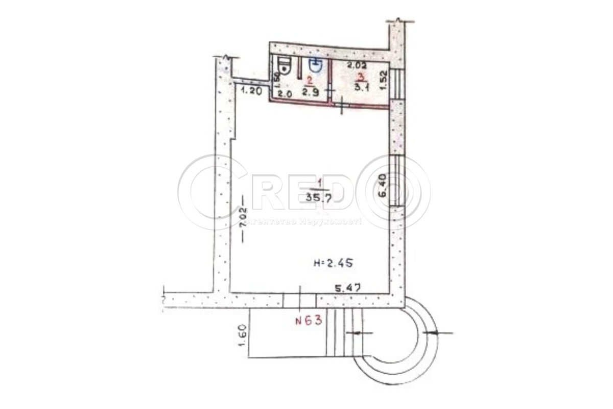
Загальна площа – 41,7 кв.м
Торговельний зал – 35,7 кв.м
Приміщення у робочому стані

Комунікації:
Центральне опалення
Водопостачання
Санвузол
Електропостачання 8кВт

Плюси локації:
Поруч ТК «Піраміда», ринок
Стабільний пішохідний трафік
Розвинена інфраструктура району
Зручне розташування для клієнтів

Оренда 7 000грн + комун. платежі.
Вільне з 1 березня.

За будь-якими питаннями за цією або схожими пропозиціями звертайтесь за номером телефону, де вам відповість наш ріелтор 067 638 50 54.

З повагою, команда Credo!

Подробности о недвижимости

ID недвижимости

Площадь общая

32087

41.7 кв. м

Адрес/Расположение объекта недвижимости

Адрес

Город/н.п.

Область

просп. Героев Мариуполя

г.Кривой Рог

Днепропетровская

Страна

Украина

Особенности и удобства

Получите больше информации
Агентство недвижимости CREDO

Похожие объекты недвижимости

Похожие объекты в этом районе

Оренда приміщення, вул. Софії Перовської

г.Кривой Рог, ул. Софьи Перовской
182 $/за объект
44 кв. м
Оренда приміщення по вул. С.Перовської, р-н пл. В. Великого Про об'єкт: - Загальна площа - 44кв.м. - Торг.пл.30.2кв.м. Комунікації: - Центральний водопровід. - Електрика. - Центральна канал...

Аренда коммерческая Днепр

г.Днепр, ул. Энергетическая
170 $/за объект
50 кв. м
Высота 4 м . Сухой, есть вода , электричество .территория охраняется. Находятся на красной линии ул Энергетическая ( р-н проспекта Б. Хмельницкого ). Возможно увеличить еще на 50 метров.

Аренда коммерческая Днепр

г.Днепр, ул. Энергетическая
170 $/за объект
50 кв. м
Высота 4 м . Сухой, есть вода , электричество .территория охраняется. Находятся на красной линии ул Энергетическая ( р-н проспекта Б. Хмельницкого ). Возможно увеличить еще на 50 метров.

Аренда коммерческая Днепр

г.Днепр, Комсомольская
159 $/за объект
32 кв. м
Центральная часть города, ворота 3м на 3м. Высота 3.5м. Есть вода, 380. Рядом есть боксы 190 метров и 117 метров.

Аренда коммерческая Днепр

г.Днепр, Комсомольская
159 $/за объект
32 кв. м
Центральная часть города, ворота 3м на 3м. Высота 3.5м. Есть вода, 380. Рядом есть боксы 190 метров и 117 метров.

Аренда коммерческая Днепр

г.Днепр, Карла Маркса
129 $/за объект
46 кв. м
Охраняемая территория. Отдельный вход. Парковка. Электричество. Возможно под склад производство.