Rielt.org

Продажа таунхаусы Обуховский

Украина, Киевская обл., с.Ходосовка,  

Продажа

1 год назад
4 комнаты
2 этажа
109 кв. м

71 000 $/за объект

651 $/кв. м

Общие характеристики

Кол-во комнат

4

Этаж/Этажность

/2

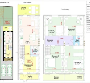
Описание недвижимости

Продаж будинку.
Доступні 2 варіанти планувань на Ваш вибір.
Загальна площа – 109 м².
Площа земельної ділянки – 2.35 сотка.
Поверховість – 2 поверхи.
Фундамент – стрічковий монолітний.
Стіни – Газоблок.
Перекриття – Залізобетонне.
Покриття – Плоска мембранна покрівля .
Утеплення стін – пінопласт 100мм.
Утеплення покрівлі – мінеральна вата 200мм.
Вікна – двокамерний склопакет з енергозберігаючим напиленням.
Опалення – електричне з можливістю підведення газу.
Електрика – 10кВт.
Водопровід – свердловина. (облік по внутрішніх лічильниках).
Каналізація – централізована на 7 будинків (септик з підземним дренажним полем).
Парковка – на 1-2 автомобілі.
Під’їзд – Асфальтований.
Відстань до лісу – за парканом.
Відстань до озера – 700м.
Відстань до магазину, зупинки, шкільного автобуса – 1,6км.
Відстань від межі міста – (6,5км. через Хотів-Феофанію), (11.8км. Через Одеську трасу).

Подробности о недвижимости

ID недвижимости

Площадь общая

3051

109 кв. м

Адрес/Расположение объекта недвижимости

Город/н.п.

Область

с.Ходосовка

Киевская

Район/мкр.

Страна

Обуховский

Украина

Особенности и удобства

Получите больше информации
Володимир

Похожие объекты недвижимости

Похожие объекты в этом районе

Продажа таунхаусы Авиаторов

с.Петропавловская Борщаговка, ул. Авиаторов
77 300 $/за объект
5 комнат
106 кв. м
Від власника. Таунхаус знаходиться в с. Петропавлівська Борщагівка. Вулиця Мельниченко, 43. Ремонт не починали. Готові лише планування та дизайн проект для першого поверху - віддамо в подарунок:). За...

Таунхаус в топовій локації м.Ірпінь (парк НЕЗНАЙКО)

г.Ирпень,  
85 000 $/за объект
4 комнаты
90 кв. м
Таунхаус 90 м2 + мансарда 40 м. Великий передній двір під паркування авто! Задній індивідуальний для відпочинку та смачних шашликів! Локація: м. Ірпінь, вул. Ярославська 26 навпроти парк Незнай...

Таунхаус біля Центрального парку, вул. Вериківського 13

г.Ирпень,  
76 000 $/за объект
4 комнаты
86 кв. м
Таунхаус 86 м2 + мансарда 40 м. Великий передній двір під паркування авто! Задній індивідуальний для відпочинку та смачних шашликів! Локація: м. Ірпінь, вул.Вериківського 13 парк Центральний!...

Продам таунхаус - будинок 109 м2, єОселя

с.Зазимье,  
65 000 $/за объект
4 комнаты
109 кв. м
Сучасний двоповерховий таунхаус з власним двором та паркомісцем в с. Зазим'я. Просторий та комфортний будинок, який стане ідеальним місцем для життя вашої родини. Планування та площі: – Перший по...