Rielt.org

Аренда коммерческая Голосеевский

Украина, г.Киев, пер. Голосеевский

Аренда

3 недели назад
5 комнат
этаж 3 из 16
900 кв. м

9 848 $/месяц

11 $/кв. м

Общие характеристики

Кол-во комнат

5

Этаж/Этажность

3 /16

Описание недвижимости

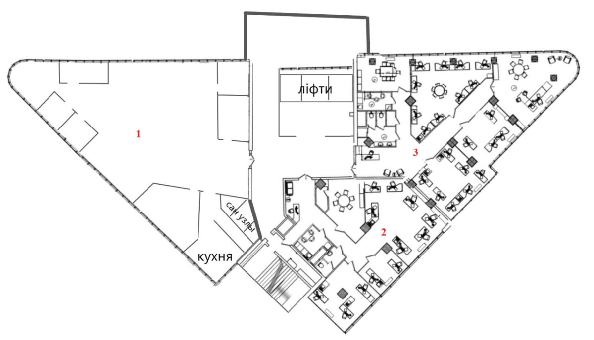
Сдаётся офис помещение. Голосеевский район, проспект Голосеевский, 132, метро Выставочный центр

Цілий поверх можливостей у серці Голосіївського району!

Пропонуємо в оренду ексклюзивний офісний простір площею 900 м у сучасному Бізнес-Центрі Реле , метро Виставковий центр - 5 хвилин. Це не просто офіс це цілий поверх, спроектований для ефективної роботи, приватності та комфорту вашої команди.

Простір розбитий на зручні блоки, які ідеально підходять для розміщення відділів, переговорних, лаунж-зон або робочих кабінетів. Гнучке планування дозволяє адаптувати офіс під будь-які бізнес-завдання від IT-компанії до юридичного холдингу.

Локація: Голосіївський район один з найзеленіших і динамічно розвиваючихся районів Києва. Зручна транспортна розв #39;язка, метро в...

Подробности о недвижимости

ID недвижимости

Площадь общая

29665

900 кв. м

Адрес/Расположение объекта недвижимости

Адрес

Город/н.п.

Область

пер. Голосеевский

г.Киев

Киевская

Район/мкр.

Страна

Голосеевский район

Украина

Особенности и удобства

Получите больше информации
Ольга Дикая

Похожие объекты недвижимости

Похожие объекты в этом районе