Rielt.org

Продажа коммерческая Выставочная

Украина, Киевская обл., с.Чубинское, Выставочная

Продажа

1 месяц назад
5 комнат
этаж 1 из 2
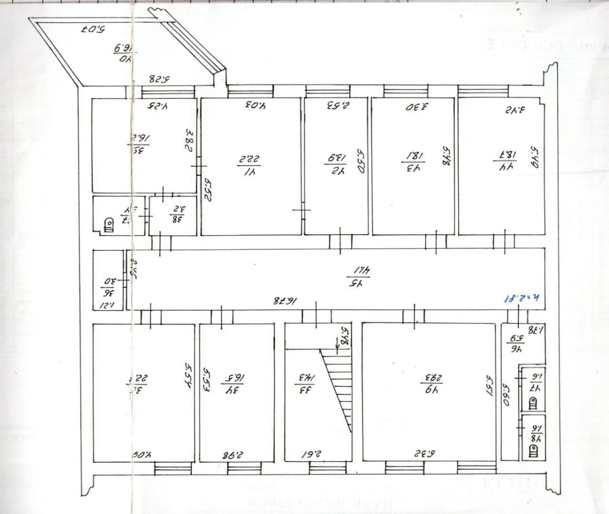
480 кв. м

135 000 $/за объект

281 $/кв. м

Общие характеристики

Кол-во комнат

5

Этаж/Этажность

1 /2

Описание недвижимости

Продам отдельно стоящее здание коммерческого промышленного назначения. Киевская область, Бориспольский район, Чубинское, улица Выставочная, 1. Общая площадь 480м2, расположенно на 6 сотках приватизированной земли, имеет два входа с фасада улицы и со двора, есть парковка, цена 135.000 у.е., есть все коммуникации, удобная транспортная развязка 15 минут до метро. Бориспольская и Харьковская, 100 и 800м до остановки маршруток, рядом продуктовый магазин, аптека, школа. Без торга! Риелторам %

Подробности о недвижимости

ID недвижимости

Площадь общая

29573

480 кв. м

Адрес/Расположение объекта недвижимости

Адрес

Город/н.п.

Область

Выставочная

с.Чубинское

Киевская

Район/мкр.

Страна

Бориспольский

Украина

Особенности и удобства

Получите больше информации
Сергей Михеев

Похожие объекты недвижимости

Похожие объекты в этом районе

Продажа коммерческая Выставочная

с.Чубинское, Выставочная
160 000 $/за объект