Rielt.org

Оренда магазину на "95 Кварталі"

Украина, Днепропетровская обл., г.Кривой Рог, ул. Гагарина

Аренда

4 месяца назад
103 кв. м

10 $/за объект

0 $/кв. м

Общие характеристики

Вход в помещение

отдельный

Коммерч. категория

торговля

Описание недвижимости

Пр. Університетський, 3 (Гагаріна)
Саксаганський район
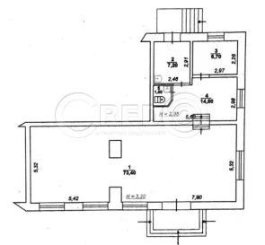
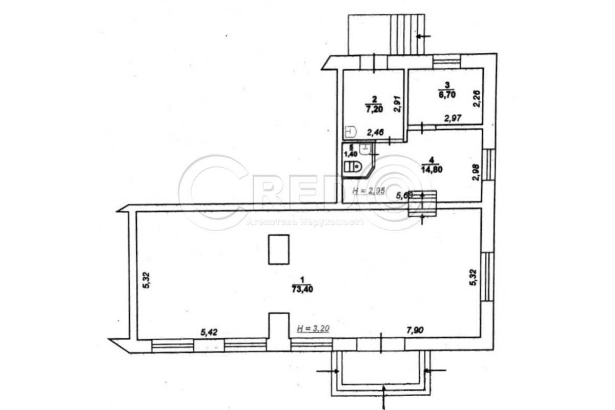
- загальна площа-103 кв.м
- торгівельний зал-73,4 кв.м
- висота стелі - Н= 3,20 м

Комунікації:
- центральне електропостачання 12 кВт; 380 Вт
- центральне водопостачання
- центральна каналізація
- автономне газове опалення
- приточено - витяжна система кондиціювання
- пожежна та охоронна система.

Логістична розв’язка:
- головна вулиця міста
- розташоване приміщення по «червоній лінії»
- парковка біля магазину
- зручний під'їзд
- великий пішохідний та проїздний трафік.

Особливості приміщення:
- магазин в робочому стані
- ремонтні роботи обговорюються при зустрічі
- має завантажувальний вхід з рампою
- магазин кутовий

Додаткові платежі:
- світло, вода-лічильники
- опалення газове- лічильник
- охоронна, пожежна сигналізації
- інтернет
- послуги ЖКХ
- послуга агенції- 50% по факту оренди

Вартість оренди- 400грн за 1кв.м.

За будь-якими питаннями за цією або схожими пропозиціями звертайтесь за номером телефону 067 696 16 51.

Подробности о недвижимости

ID недвижимости

Площадь общая

26154

103 кв. м

Адрес/Расположение объекта недвижимости

Адрес

Город/н.п.

Область

ул. Гагарина

г.Кривой Рог

Днепропетровская

Район/мкр.

Страна

Саксаганський

Украина

Особенности и удобства

Получите больше информации
Агентство недвижимости CREDO

Похожие объекты недвижимости

Похожие объекты в этом районе

Оренда магазину на "17 кварталі"

г.Кривой Рог, ул. Сергея Колачевского
8 $/за объект

Оренда приміщення, вул. Українська

г.Кривой Рог, ул. Украинская
9 $/за объект

Оренда приміщення вул.В.Великого «Червона лінія»

г.Кривой Рог, ул. Мелешкина
10 $/за объект

Аренда коммерческая Алексы Тихого

г.Киев, Алексы Тихого
8 $/за объект

Аренда коммерческая Александра Олеся

г.Киев, Александра Олеся
10 $/за объект

Аренда коммерческая Киев

г.Киев, ул. Новоконстантиновская
8 $/за объект