Rielt.org

De vânzare casă Sobornosti

Sobornosti str., s.Khotiv, Kyivska reg., Ucraina

De vânzare

1 an în urmă
5 camere
2 etaje
320/95/60/10 m²

210.000 USD/pe obiect

656 USD/

Prezentare generală

Nr. camere

5

Pardoseală/Număr etaje

/2

Descrierea proprietății

Продаж будинку на видовому участку, у мальовничій частині передмістя Києва, поруч із Теремками:

село Хотів, Києво-Святошинський район, провулок Соборності
- 10 Ар участок;
- 320м2, два поверхи, тераса, гараж на 2 авто, підвал;
- 4 спальні, 3 санвузли, 4 гареробних, кухня-вітальня;
- будинок 2021 року, ремонт 2021-2022 року;
- укомплектований, з меблями;
- електроенергія 40 кВт, скважина, система водоочистки із зворотнім осмосом, септик, газовий котел, електрокотел, бойлер;
- 7-8 км до ст.м. Теремки;
- $210 тис.

Радий вам запропонувати затишний будинок у селі Хотів, поруч із Голосіївським районом.
Це ідеальне місце для життя тих, хто хоче насолоджуватися затишком та тишею, а також бажає жити в природному середовищі з чистим повітрям.
Будинок збудований у 2021 році, ремонт завершений у 2021-22 році.
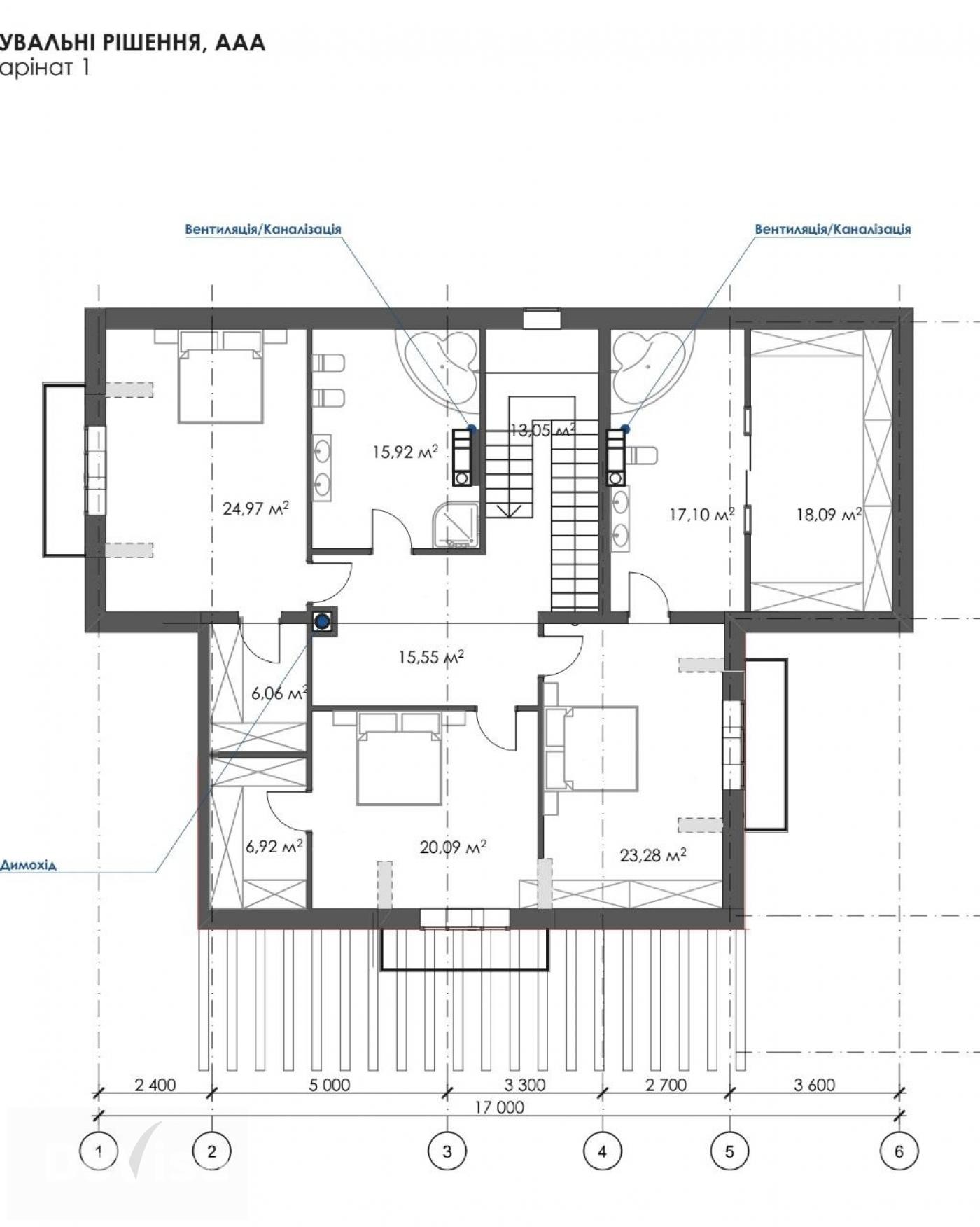
Загальна площа будинку складає 320 м2.
Будинок має два поверхи, опалювальний гараж на 2 авто, тересу та підвал.
1 поверх: кухня-вітальня, санвузол (душ), гардеробна, спальня (кабінет за бажанням), передпокій на вхід з вулиці та гаражу, простора крита тераса;
2 поверх, три спальні з балконами: майстер-спальня зі своїм санвузлом, ще дві кімнати зі своїми гардеробними кімнатами (одна з ним дитяча, інша без меблів) та санвузлом.
Опалення - тепла підлога скрізь, де є плитка (водяна) та батареї прихованого монатжу: внутрішньопідлогові водяні конвектори з обдувом для повноцінної естетики.
Гараж з водяним опаленням (тепла підлога).
На першому поверсі є вивід під робочий камін, по бажанню ви можете створити додаткову атмосферу затишку та комфорту.
Якісно збудований будинок дозволяє значно заощаджувати на комунальних послугах, що вартості еквівалентно 2-кімнатній квартирі у Києві.
В цифрах це до 2000-3000 грн/міс взимку.
Монолітна плита, стіни підвалу бетон з армопоясом, зовнішні стіни газоблок, внутрішні - цегла, перекриття залізобетонні, дах - металочерепиця.
Свердловина, переливний септик.
Електрика - якісна мідна проводка, вікна Rehau, система водоочистки з зворотнім осмосом та пом'якшувачем.

Земельна ділянка площею 10 Ар, рулонний газон, вікові дерева. Було проведено багато земельних робіт, ділянка рівна, з незначним наклоном на в'їзді.
Дренажна система.
Асфальтований під'їзд, зручне розташування для села Хотів.
За вашою безпекою буде стежити система охорони, а доступ до інтернету буде забезпечено.

Село Хотів має розвинуту інфраструктуру, що дозволить вам комфортно проживати.
На території села є магазини, аптеки, школа, дитячий садок, спортивні майданчики та інше.
Крім того, село розташоване в безпосередній близькості до Києва, що дозволяє зручно ділити свій час між роботою в місті та всіма перевагами проживання за містом.
7-8 км до ст.м. Теремки.

Ціна $210000, без комісії.

відеоогляд за посиланням:
bit.ly/3zR02F0

Detalii proprietate

ID proprietate

Suprafață totală

Suprafață locuibilă

Suprafață bucătărie

Suprafață teren

4107

320 m²

95 m²

60 m²

10 m²

Adresă/Locația proprietății

Adresă

Oraș/localitate

Regiune

Sobornosti str.

s.Khotiv

Kyivska

Cartier/Zonă

Țară

Kyievo-Sviatoshynskyi

Ucraina

Dotări și facilități

Construcție nouă

Obțineți mai multe informații

Proprietăți similare

Proprietăți similare în această zonă

De vânzare casă Kyiv

Sadova str.
209.000 USD/pe obiect
5 camere
300/13 m²
Дом на закрытой территории возле озера Мартышев в Осокорках. От метро Славутич 4 км. Общая площадь дома 300 кв.м. Под всем домом цокольный этаж который планировали использовать как винный погреб, сау...

De vânzare casă Ozerna

Ozerna str.
170.000 USD/pe obiect
5 camere
386/200/25/30 m²
Будинок-коробка 386кв.м., без вікон та дверей, на дуже гарній, затишній території, з виходом до озера. На ділянці є літній будинок150кв.м., в якому є вітальня та дві спальні кімнати(мебльовані), душо...

De vânzare casă Козацька

Козацька
230.000 USD/pe obiect
5 camere
278/13 m²
51941 Продам будинок 15 км.від Києва . Фастівський р-н . Будинок великий, просторий. На першому поверсі роздягальні, велика вітальня з кухнею, санвузол- душова,котельн,гараж. На другому поверс...

De vânzare casă Kyiv

Sadova str.
240.000 USD/pe obiect
5 camere
250/5 m²
На ділянці 5 соток є 3 будинка на Воскресенських садах. Перший будинок 180 кв.м. З гаражем , ( цегла, газоблок, стіродур) та 2 гостьових 2повер . будиночка 100 кв.м. цегла, дерево під брус) . Елект...

De vânzare casă Velyki Dmytrovychi

 
250.000 USD/pe obiect
5 camere
265 m²
Затишний будинок S=265 кв.м., розташований на 48 сотках. Будинок має 2 основні поверхи плюс повноцінний цокольний поверх та горище. На ділянці є критий басейн з підігрівом, гостьовий будинок 100 кв.м....

De vânzare casă Velyka Dymerka

 
190.000 USD/pe obiect
5 camere
243 m²
Будинок з підвалом 243 м2 без внутрішніх робіт в смт Велика Димерка. За 10 -15 хвилин від Броварів, недалеко окружна дорога. На територію заведено газ та світло (20кВт). Є 2 свердловини (технічна - 20...