Rielt.org

Продаж цікавої 1кімнатної квартири. м-н Гірницький

Hirnytskyi microc., or.Kryvyi Rih, Dnipropetrovsk reg., Ucraina

De vânzare

10 ore
1 cameră
etaj 1 din 9
36/17/8 m²

14.500 USD/pe obiect

399 USD/

Prezentare generală

Nr. camere

1

Pardoseală/Număr etaje

1 /9

Descrierea proprietății

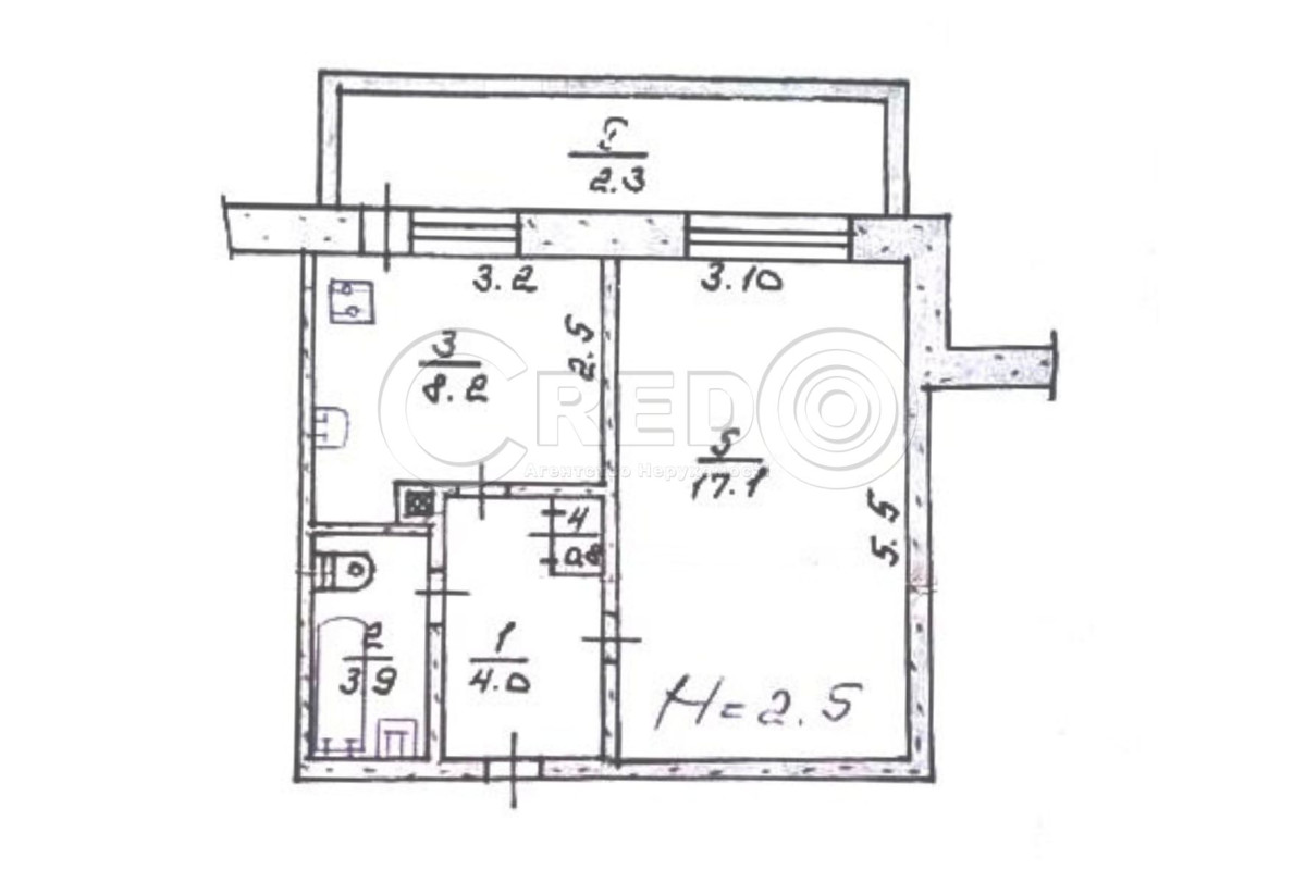
Пропонуємо до продажу унікальну 1кімнатну квартиру
у Саксаганському районі, мікрорайон Гірницький,49.

У розташованій на першому поверсі квартирі маємо
величезну лоджію з підвалом!
Ще один плюс - встановлені високоякісні столярні вироби!

Про об'єкт:
- тихий, спальний, зелений район.
- 1 поверх 9типоверхового будинку.
- загальна площа 36.3м.кв. (без урахування лоджії).
- житлова площа 17,1 м.кв.
- без боргів.

Особливості квартири:
- прибудова - лоджія 6,5м х 1,5м вздовж всієї
квартири, зручний вихід з кухні.
- має підвальне приміщення.
- зручно для сім'ї що має домашніх тваринок,
ваші собачки-котики будуть у захваті!
Дуже функціонально!
- почато ремонт зі встановлення столярки
високої якості: вхідні, тамбурні, міжкімнатні
двері - натуральне дерево, лаковані.
- балконний блок, велике вікно у кімнаті -
натуральне дерево, склопакет, гарна фурнітура.
- віконна група лоджії посилена для безпеки гратами.

Техніка:
квартира забезпечена:
- газова плита.
- бойлер.
- лічильники.
- кондиціонер.
- холодильник.
- пральна машина.
- кухонні меблі.

Локація:
- будинок знаходиться в зеленій зоні.
- поряд Центр дитячої творчості &"Сонях&".
- дитячий садочок № 81, гімназії № 124, № 68.

Пропонована ціна 14 500$
За будь-якими питаннями за цією або іншими пропозиціями звертайтесь за номером телефону 067 982 17 19.
З повагою, команда Credo!

Detalii proprietate

ID proprietate

Suprafață totală

Suprafață locuibilă

Suprafață bucătărie

Balcon

Baie

35256

36.3 m²

17.1 m²

8.2 m²

logie

combinat

Adresă/Locația proprietății

Adresă

Oraș/localitate

Regiune

Hirnytskyi microc.

or.Kryvyi Rih

Dnipropetrovsk

Cartier/Zonă

Țară

Saksahanskyi

Ucraina

Dotări și facilități

Obțineți mai multe informații
Агентство недвижимости CREDO

Proprietăți similare

Proprietăți similare în această zonă

De vânzare apartament Dalnytska

Dalnytska str., or.Odesa
15.000 USD/pe obiect
1 cameră
37/14/16 m²
Продам 1-комн. 2/2, ул. Дальницкая/ Балковская, 37/14/16, крепкий дом, окна мпо, высота 3.30, кухня студия и отдельно спальня, кондиционер, бойлер, мебель, пол ламинат, санузел облицован, бронированна...

De vânzare apartament Abakanska

Abakanska str., or.Kharkiv
17.000 USD/pe obiect
1 cameră
38/9 m²
Продам чистую, светлую, тёплую, аккуратную 1 к. из. квартиру на ближнем Залютино, ул. Залютинская. Экологически чистый, зелёный район. Хорошее жилое состояние, косметический ремонт. 1/2, перекрытия...

De vânzare apartament Poltava

or.Poltava
17.000 USD/pe obiect
2 camere
44/8 m²
Продажа 2-х ком квартиры, Супруновка

De vânzare apartament Poltava

or.Poltava
16.000 USD/pe obiect
2 camere
27/8 m²
Продам двушку в частном доме.Есть сарай во дворе и погреб.Забор,общий двор,есть где поставить машину АН Галерея Недвижимости 21736710

De vânzare apartament Poltava

Stepovoho Frontu str., or.Poltava
15.670 USD/pe obiect
1 cameră
42/10 m²
Продажа 1-комнатной квартиры ЖК Династия. Ул. Степового Фронту, 6. Сдача будет в 3 квартале 2022 года. В основании дома керамический кирпич, базальтовая вата и облицовочный кирпич. В квартире будет ус...

De vânzare apartament Poltava

Dukhova str., or.Poltava
15.000 USD/pe obiect
2 camere
31/22/18 m²
Продам 2 комнаты( квартиру в малосемейке) смежные( но есть 2 входа) в общежитии на 5 школе, приватизированые; рядом вся инфраструктура( школа садик трц больница парк детские площадки ОЦЕВУМ Листопад к...