Rielt.org

De vânzare apartament Кудри

Кудри , or.Kyiv, Kyivska reg., Ucraina

De vânzare

1 oră
4 camere
etaj 5 din 24
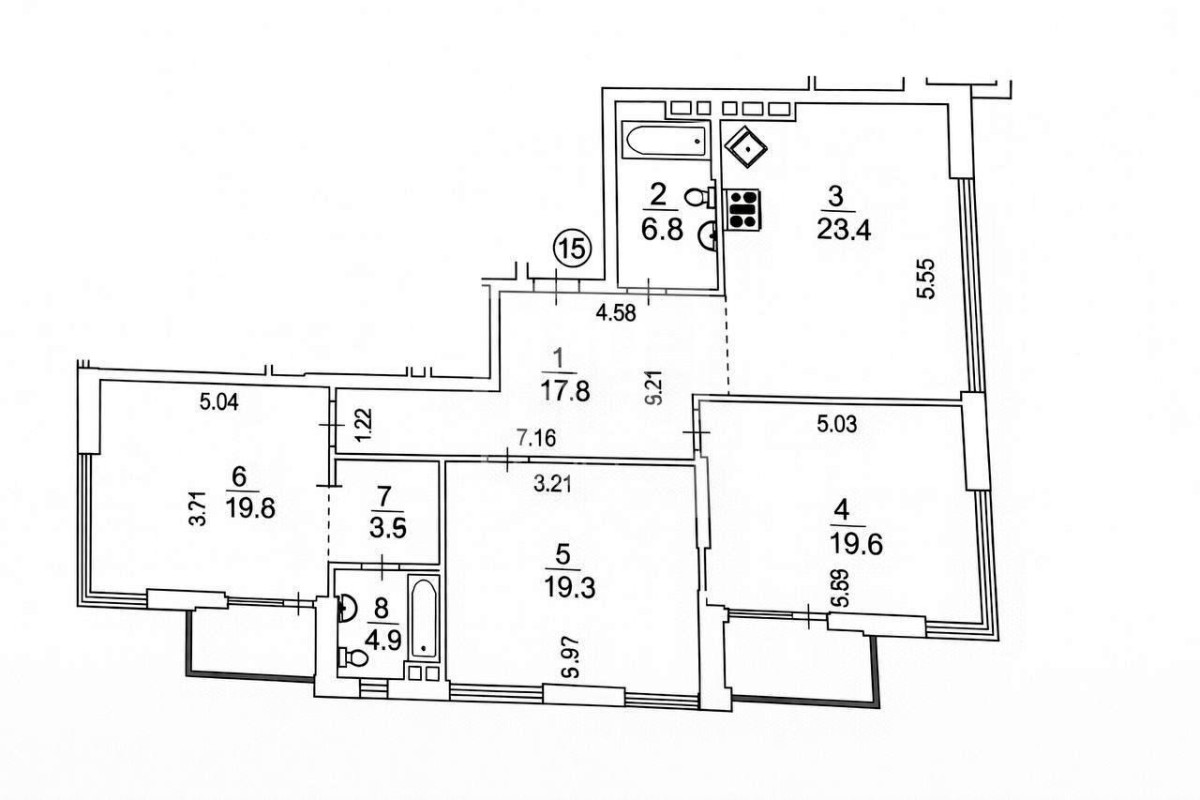
123/80/25 m²

360.000 USD/pe obiect

2.927 USD/

Prezentare generală

Nr. camere

4

Pardoseală/Număr etaje

5 /24

Descrierea proprietății

Квартира 4-Кімнатна площа 123-м2 на 5 поверху по вул. Джона Маккейна 3а (Івана Кудрі)

Простора квартира з яскравим видом на центральну алею ЖК Французький квартал 2 в центрі міста.
В будинку встановлене резервне живлення ( інвертори)- при відключеннях світла працють ліфти, світло, вода, опалення, контроль доступу і тд...
Планування: Три окремі спальні, одна з них мастер спальня зі своім сан. вузлом, гардеробом і балконом.
Велика кухня - гостинна 30 кв.м, 2 окремі сан. вузли, 2 лоджіі.
Також є можливість зробити перепланування і додати ще 1 кімнату.
Стан ремонту квартири від забудовника.
Висота стелі 3м
Будинок побудованний монолітно-каркасною технологіею з утепленням мінеральною ватою що забеспечуе тепло в квартирі.


Розвинута інфоструктура поруч є : ТЦ Ocean Plaza, Нова пошта, кафе, ресторани, спортивні клуби.
До метро Лбітьська 2хв.
Поруч ЖК Французкий квартал, Бульвар фонтанов, Taryan Tower, Печерськ,
Не втрачайте можливість стати власником комфортної квартири!

Detalii proprietate

ID proprietate

Suprafață totală

Suprafață locuibilă

Suprafață bucătărie

35148

123 m²

80 m²

25 m²

Adresă/Locația proprietății

Adresă

Oraș/localitate

Regiune

Кудри

or.Kyiv

Kyivska

Cartier/Zonă

Țară

Pecherskyi

Ucraina

Dotări și facilități

Obțineți mai multe informații
Даниленко Влада

Proprietăți similare

Proprietăți similare în această zonă

De vânzare apartament Saksahanskoho

Saksahanskoho str.
300.000 USD/pe obiect
5 camere
133/15 m²
2 этаж/6ти этажного дома, 8 комнат, 2 санузла, 2 балкона, окна выходят на две стороны – улицу и во двор, идеальная тишина - деревянные стеклопакеты, зимой очень тепло, кондиционеры, сигнализация, евро...

De vânzare apartament Kyiv

Pidvysotskoho profesora str.
390.000 USD/pe obiect
4 camere
130/72/21 m²
Предлагаю Вашему вниманию 4-х комн. квартиру в ЖК «НОВОПЕЧЕРСКИЕ ЛИПКИ» расположенные в историческом, культурном и деловом центре Киева. Многофунциональность ЖК, позволяют комфортно проживать, не пок...

De vânzare apartament Yevhena Konovaltsia

Yevhena Konovaltsia str.
420.000 USD/pe obiect
4 camere
120 m²
БЕЗ комиссии!!! Продается 4 - хкомнатная квартира в ЖК Аристократ, по ул. Коновальца 34А, Печерский район, центр. Квартира расположена на 12/25 этажного дома, просторная планировка общей площадью 12...

De vânzare apartament Yevhena Chykalenka

Yevhena Chykalenka str.
298.000 USD/pe obiect
4 camere
111/55/13 m²
Квартира в самом центре города! Тут и тихий двор, и свое парковочное место, и красивый царский дом. Квартира просторная с большим потенциалом планировки. Тут потолки 4м. высотой, стены метровой толщин...

De vânzare apartament Kyiv

Zolotovoritska str.
340.000 USD/pe obiect
4 camere
107/71/12 m²
Трехкомнатная квартира в хорошем состоянии, с ремонтом, 4/4 этаж кирпичного дома, высокие потолки, 107/71/10 кв.м. Просторная кухня - гостинная, 40 кв.м. гостевая, 10 кв.м. рабочая зона кухни, две ком...

De vânzare apartament Kyiv

European Union bd.
300.000 USD/pe obiect
4 camere
121 m²
4к просторная квартира с ремонтом в ЖК Варшавский микрорайон. Право собственности получено. Видовой 20 этаж, Юго-западная сторона Ремонт в классическом стиле. Две детские комнаты, мастер-спальн...