Rielt.org

De închiriat comercială Kostiantynivska

Kostiantynivska str., or.Kyiv, Kyivska reg., Ucraina

De închiriat

1 lună în urmă
2 camere
etaj 2 din 6
12 m²

129 USD/lună

11 USD/

Prezentare generală

Nr. camere

2

Pardoseală/Număr etaje

2 /6

Descrierea proprietății

Сдаётся торговое помещение помещение. Подольский район, улица Константиновская, 66, метро Тараса Шевченко.

Здається торгівельне приміщення. Подільський район, вулиця Костянтинівська, 66, метро Тараса Шевченко.

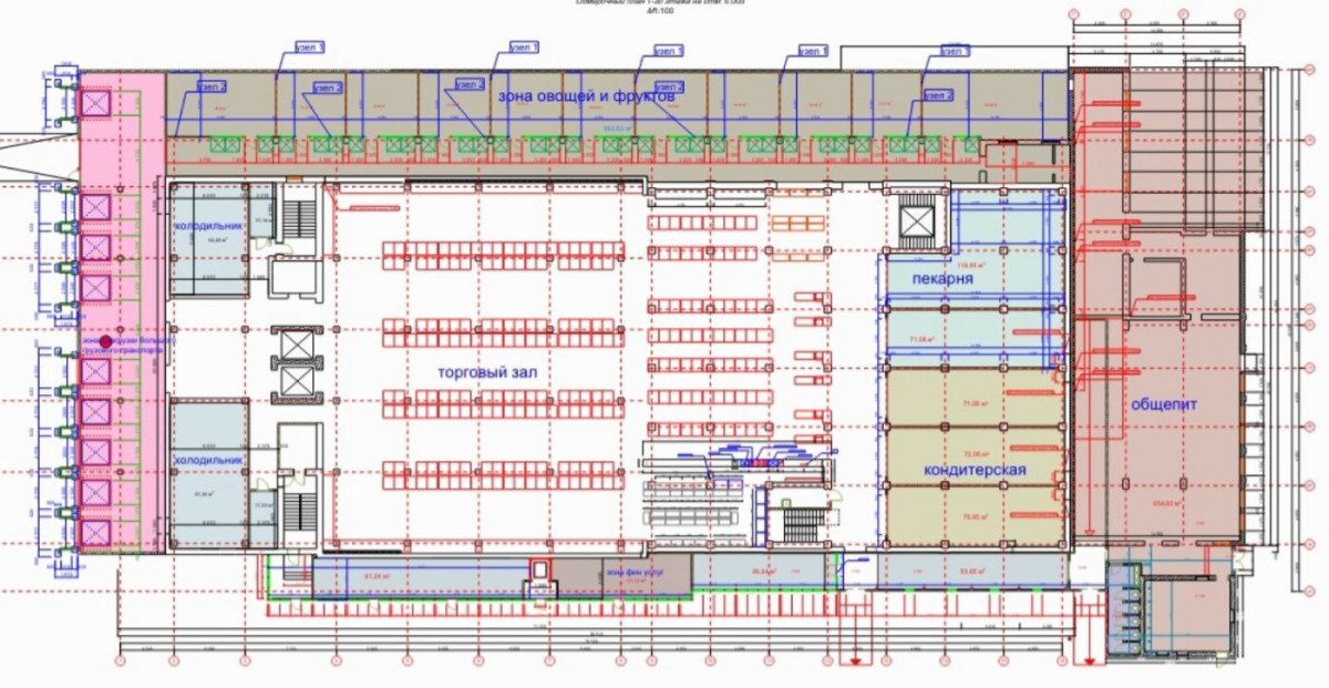
Сучасний хаб оптово-роздрібної торгівлі запрошує до співпраці виробників фермерської продукції. Пропонуємо окремі зони під різні групи продукції обладнані вітринами, розділочними зонами та зонами зберігання ( морозильні та холодильні камери).

Зручна рампа для розгрузки та декілька ліфтів для зручного переміщення товару. Можлива окрема оренда морозильних камер.

Площа від 12 кв.м. і більше, в залежності від ваших потреб.

На -1 поверсі облаштована зона відпочинку для працівників ( кімната зберігання речей, столова, душова).

На першому поверсі торгівельної бази розташований супермаркет та пекарня.

Зручна...

Detalii proprietate

ID proprietate

Suprafață totală

31821

12 m²

Adresă/Locația proprietății

Adresă

Oraș/localitate

Regiune

Kostiantynivska str.

or.Kyiv

Kyivska

Cartier/Zonă

Țară

Podilskyi

Ucraina

Dotări și facilități

Obțineți mai multe informații
Жанна Буяновская