Rielt.org

De închiriat comercială Dniprovska

Dniprovska chei, or.Kyiv, Ucraina

De închiriat

3 luni în urmă
1 cameră
etaj 1 din 24
67 m²

1.023 USD/lună

15 USD/

Prezentare generală

Nr. camere

1

Pardoseală/Număr etaje

1 /24

Metrou

Osokorky

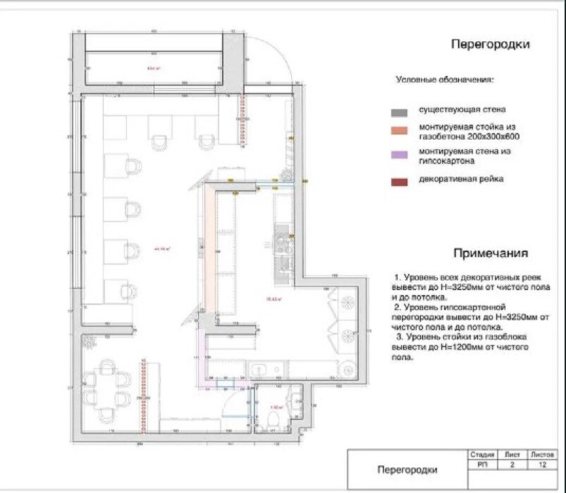
Descrierea proprietății

Оренда приміщення в ЖК Seven в Дарницькому районі міста Києва за адресою: вулиця Дніпровська набережна 20Б метро Осокорки в пішій доступності.

Сам ЖК комфорт класу повністю заселений.
- Загальна площа 67.3 кв.м.;
- Окремий вхід с першого поверху, нежитловий фонд;
- Зроблений базовий ремонт (після орендаря);
- Є всі комунікації, електроенергія 20 кВт з можливістю збільшення при потребі.

Поруч з приміщенням знаходиться магазин канцелярії та салон краси.
Надаємо ремонтні канікули для адаптації. Підходить під всі види діяльності.

Ціна оренди: 45000грн + оплата комунальних послуг

Detalii proprietate

ID proprietate

Suprafață totală

31774

67 m²

Adresă/Locația proprietății

Adresă

Oraș/localitate

Regiune

Dniprovska chei

or.Kyiv

Kyivska

Țară

Ucraina

Dotări și facilități

Obțineți mai multe informații
Ольга Дикая

Proprietăți similare

Proprietăți similare în această zonă

De închiriat comercială Kyiv

Kostiantynivska str., or.Kyiv
841 USD/pe obiect
2 camere
80 m²
Здається приміщення в самому серці Подолу - Костянтинівській, 18. Фасад, велике приміщення на 80м2, відмінно підійде під офіс, салон краси або магазин. Свіжий ремонт, є санвузол, 2 кімнати (60м2 та 15...

De închiriat comercială Kyiv

Tsentralna str., or.Kyiv
1.000 USD/pe obiect
2 camere
80 m²
Фасадне приміщення по Центральній вулиці, до метро Славутич 4км. Площа приміщення 80кв.м, має окремий вхід, тамбур, санвузол та склад. Комунікації: централізоване опалення, водопостачання, електроен...

De închiriat comercială Mykhaila Drahomanova

Mykhaila Drahomanova str., or.Kyiv
1.114 USD/lună
2 camere
77 m²
Оренда фасадного приміщення 77 м у топовій локації Дарницького району вул. Драгоманова, 27, поруч зі станцією метро Позняки. Приміщення розташоване в самому центрі густонаселеного житлового масиву...

De închiriat comercială Kyiv

Zarichna str., or.Kyiv
989 USD/lună
1 cameră
56 m²
Оренда компактного, стильного офісу для невиликої кількості співробітників в Дарницькому районі біля метро Славутич в новому ЖК комфорт класу, ЖК "Славутич 2.0 " за адресою: вулиця Зарічна, метро Сла...

De închiriat comercială Shchaslyva

Shchaslyva str., s.Sofiivska Borshchahivka
898 USD/lună
1 cameră
72 m²
Оренда фасадного приміщення ЖК Волошковий, за адресою с. Софіївська Борщагівка, вул. Щаслива 11. Загальна площа приміщення 72 м2. Розташоване на першому поверсі 5 поверхового будинку. В приміщенн...