Rielt.org

De închiriat comercială Khvylovoho Mykoly

Khvylovoho Mykoly str., or.Kyiv, Ucraina

De închiriat

3 luni în urmă
5 camere
etaj 1 din 12
273 m²

2.793 USD/lună

10 USD/

Prezentare generală

Nr. camere

5

Pardoseală/Număr etaje

1 /12

Descrierea proprietății

Сдаётся помещение для общественного питания помещение. Дарницкий район, улица Хвылевого Николая, 3А, метро Красный хутор

Аренда фасадного помещения по улице Хвылевой, 3, Массив: Красный Хутор, район: Дарницкий.

Аренда фасадного помещения под ресторан.

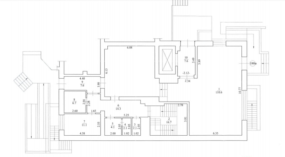
S 273,2кв.м. В двух этажах( первый + подвал )

85кВт, жироулавливатель, два стояка канализации.

Первый этаж: S -203.47кв.м. Н-3.40м. Торговый зал 110кв.м., подсобные помещения, фасадная входная группа, входная группа со двора, подъездная рампа, отдельный вход в подвальное помещение, лифтовая шахта.

Подвал: 90.3кв.м. Н-3.40, входная группа, окна в приямках.

Стремительно строящийся микрорайон - на сегодняшний день до 1000 домовладений, и в ближайшем будущем введется в эксплуатацию еще два 25-этажных дома.

Арендная ставка 3549$....

Detalii proprietate

ID proprietate

Suprafață totală

31736

273 m²

Adresă/Locația proprietății

Adresă

Oraș/localitate

Regiune

Khvylovoho Mykoly str.

or.Kyiv

Kyivska

Cartier/Zonă

Țară

Darnytskyi

Ucraina

Dotări și facilități

Obțineți mai multe informații
Жанна Буяновская

Proprietăți similare

Proprietăți similare în această zonă

De închiriat comercială Kyiv

Khvylovoho Mykoly str., or.Kyiv
2.510 USD/lună
5 camere
230 m²
Аренда комерческого помещения по улице Хвылевой, 1, Массив: Красный Хутор, район: Дарницкий. S- 230 кв.м. Первый этаж. Н-3.15 м. Выполнен ремонт. Фасадная входная группа, входная группа со двора, под...

De închiriat comercială Profesora Pavlovskoho

Profesora Pavlovskoho str., or.Kyiv
2.388 USD/pe obiect
6 camere
250 m²
250 кв.м. ( за БОМА) Кабінетна система, 2 поверх Будівлі (права частина) Ціна: 420 грн. за 1 кв.м. (Без комісії), окремо оплата комунальних платежів 2 санвузли Безкоштовний паркінг Довгостроков...

De închiriat comercială Simi Prakhovykh

Simi Prakhovykh str., or.Kyiv
2.928 USD/lună
5 camere
296 m²
Долгосрочная аренда офиса в центре Киева, Гайдара 22, Микрорайон Паньковщина, Голосеевского района. Площадь 296 м.кв (5 кабинетов, 2 санузла) весь 5 этаж корпуса В. Нежилой фонд. Высота потолков: 2.8...

De închiriat comercială Kyiv

Klovskyi cob., or.Kyiv
2.500 USD/lună
6 camere
230 m²
Пропонується сучасний офіс із панорамними вікнами та захопливим видом на Київ. Простір світлий, із великою кількістю природного світла та високими стелями у стилі loft. Функціональне планування: пр...

De închiriat comercială Kyiv

Irynynska str., or.Kyiv
3.000 USD/lună
5 camere
350 m²
Оренда офісу 350 м² у центрі Києва, вул. Ірининська. Просторий офіс у стилі Loft з якісним ремонтом після орендаря, готовий до роботи. Підійде для IT-компанії, інвестиційної компанії, креативної студі...