Rielt.org

Продаж магазину на Інгульці вул. Недєліна

Nedielina str., or.Kryvyi Rih, Dnipropetrovsk reg., Ucraina

De vânzare

5 luni în urmă
253 m²

120.000 USD/pe obiect

474 USD/

Prezentare generală

Intrare în incintă

separat

Categ. comercială

comerț

Descrierea proprietății

Продаж магазину в центрі Інгульця
- вул. Недєліна,28
- Інгулецький район

Технічні характеристики:
- перший поверх 9-ти поверхового житлового будинку
- &"червона лінія&"
- приміщення в робочому стані
- великий фасад
- парковка

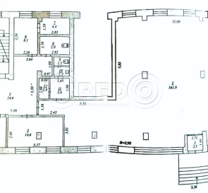
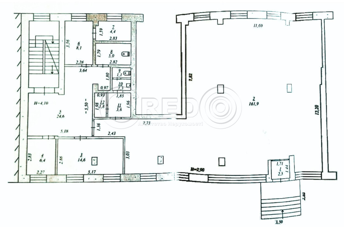
Планування об’єкту:
- загальна площа -235,3 кв.м
- торгівельний зал-162 кв.м
- вільне планування
- окремий центральний вхід

Комунікації:
- опалення центральне відрізане
- центральне електропостачання 20кВт; 380 Вт
- центральне водопостачання, каналізація
- пожежна, охоронна сигналізації

Логістична розв’язка:
- приміщення розташоване в спальному мікрорайоні
- центральна частина району
- поруч зупинки громадського транспорту
- супермаркет &"АТБ&", магазини, аптеки ,&" АНЦ&" та безліч інших магазинів
- великий автомобільний та пішохідний трафік
Продаж 120 000у.о.

За будь-якими питаннями за цією або іншими пропозиціями звертайтесь за номером телефону 067 696 16 51.
З повагою, команда Credo!

Detalii proprietate

ID proprietate

Suprafață totală

30152

253.3 m²

Adresă/Locația proprietății

Adresă

Oraș/localitate

Regiune

Nedielina str.

or.Kryvyi Rih

Dnipropetrovsk

Cartier/Zonă

Țară

Inhuletskyi

Ucraina

Dotări și facilități

Obțineți mai multe informații
Агентство недвижимости CREDO

Proprietăți similare

Proprietăți similare în această zonă

Продаж магазину на Карачунах вул. Алмазна, 4

Almazna str.
119.000 USD/pe obiect
193 m²
Продаж магазину на "Карачунах". - Центрально Міський район - вул. Алмазна, 4 Технічні характеристики: - перший поверх 5-ти поверхового житлового будинку - "червона лінія" - приміщення в робочо...

De vânzare comercială просп. Металургів

просп. Металургів
120.000 USD/pe obiect
227 m²
Пропонуємо на продаж комерційне приміщення по пр. Металургів. Технічні характеристики: - Загальна площа 227,8кв.м. - Площа першого поверху - 162кв.м, - Площа підвалу – 65,8кв.м. - Висота с...

De vânzare comercială Mykhaila Drahomanova

Mykhaila Drahomanova str.
121.000 USD/pe obiect
1 cameră
325 m²
Позняки. Помещение свободного назначения 325 кв.м (220+105) в отдельно стоящем здании (Цокольный этаж +вход16,5 кв.м 1-й этаж, Фасад, людное проходное место, удобная большая парковка) в отдельно стоящ...

De vânzare comercială Kyiv

Abaia Kunanbaieva str.
120.000 USD/pe obiect
250 m²
Продается бизнес под ключ (производственное помещение (пищевой цех 250м.кв) с полным оснащением (техническим и административным). Рампа, лифт. 220/380 вольт. 100кВт. Оснащен по стандарту "HACCP"...

De vânzare comercială Poltava

 
110.000 USD/pe obiect
300 m²
Магазин и земельный участок. Продается действующий магазин (бизнес), площадь 300 кв.м., подвал на все здание, чердак + летняя площадка. Отопление дровяное, газ, пластиковые окна, ролеты, зем. участок...

De vânzare comercială Poltava

Pokrovska str.
120.000 USD/pe obiect
240 m²
Продам офисное здание в Центральной части города со встроенными складскими помещениями (240 кв.м.) + гараж на бокса (60 кв.м. можно использовать под склад). Закрытая, заасфальтированная, огороженная т...