Rielt.org

Довгострокова оренда приміщення, 96 Квартал

Haharina str., or.Kryvyi Rih, Dnipropetrovsk reg., Ucraina

De închiriat

5 luni în urmă
217 m²

9 USD/pe obiect

0 USD/

Prezentare generală

Intrare în incintă

separat

Categ. comercială

comerț

Descrierea proprietății

Оренда приміщення, Металургійний район, проспект Університетський

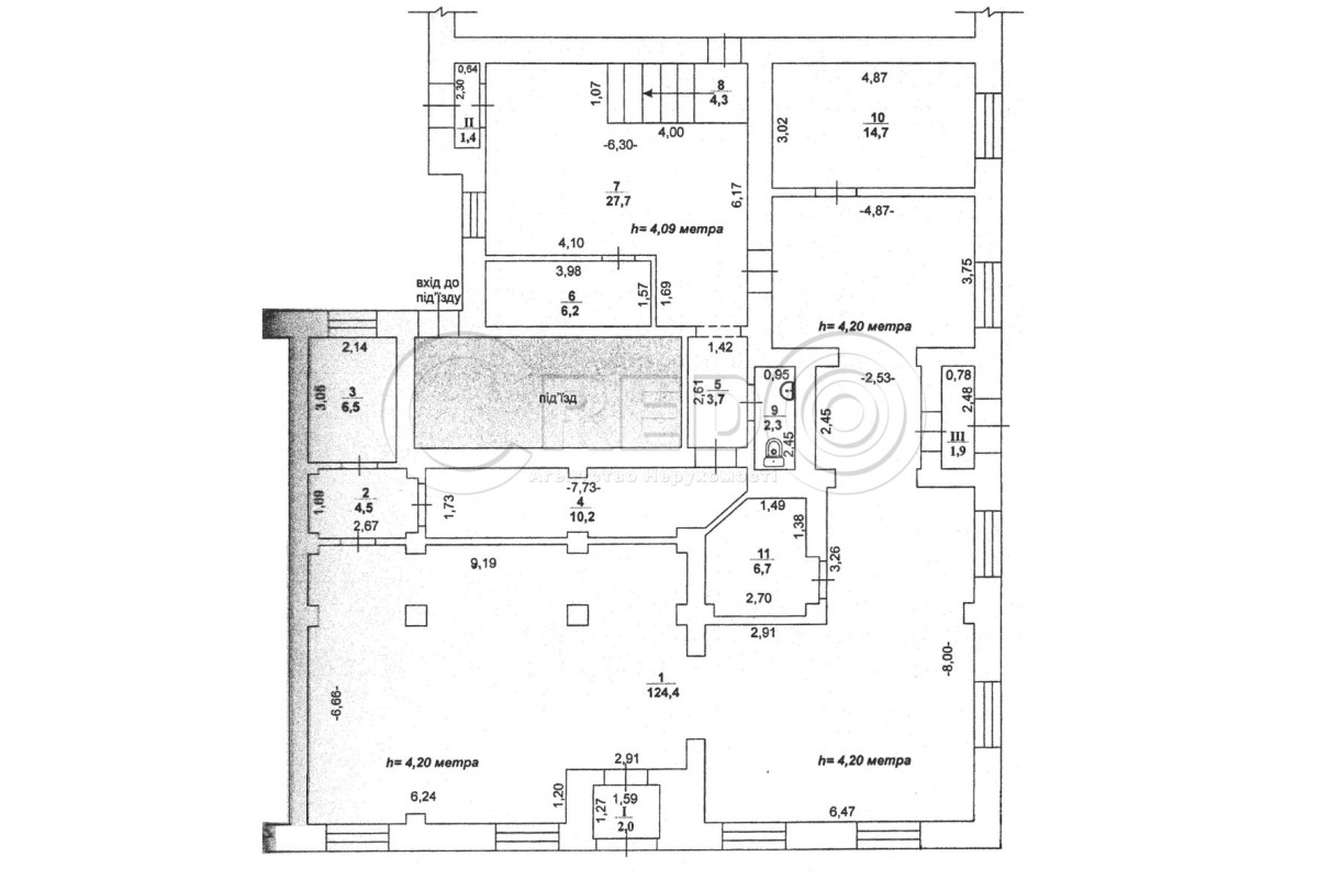
Технічні характеристики:
- Приміщення вбудовано в 1 поверх 3 поверхового житлового будинку.
- Загальна площа 287,4кв.м., з них:
- 1 поверх 216,5кв.м., торгова зала 124,4кв.м.
- два склаських приміщень.
- підвал 70,9кв.м.

Особливості об’єкту:
- приміщення фасадне, кутове,
- має два входи
- висота стелі - 4,20м
- вітражні вікна з ролетами

Комунікації:
- електроенергія 3кВт, (з можливістю підвищення напруги до 15кВт з потенційним Орендарем)
- водопостачання та каналізація,
- опалення центральне
- встановлені охоронна та пожежна сигналізації

Плюси локації:
- гарне та перспективне місце розташування обєкту поряд з зупинкою громадського транспорту &"96 Квартал&"
- великий автомобільний та пішохідний трафік.

Об’єкти поруч:
поряд ведуть бізнес банк, салони, кафе, аптеки та інші магазини.

Орендарю надаються пільгові орендні канікули для облаштування приміщення та організації власної діяльності.

Оренда 400грн за 1кв.м. + комунальні платежі

За будь-якими питаннями за цією пропозицією звертайтесь за номером телефону, де вам відповість наш ріелтор 097 541 73 31.

З повагою, команда Credo!

Detalii proprietate

ID proprietate

Suprafață totală

30148

216.5 m²

Adresă/Locația proprietății

Adresă

Oraș/localitate

Regiune

Haharina str.

or.Kryvyi Rih

Dnipropetrovsk

Cartier/Zonă

Țară

Metalurhiinyi

Ucraina

Dotări și facilități

Obțineți mai multe informații
Агентство недвижимости CREDO

Proprietăți similare

Proprietăți similare în această zonă

Оренда приміщення в Торгівельному Комплексі, вул. Вечірньокутська «Лас

Vechirnokutska str.
9 USD/pe obiect
220 m²
Оренда приміщення вул. Вечірньокутська «Ласточка» - Торгівельний комплекс - Локація - в зоні скупчення торговельних мереж. Технічні характеристики: - Приміщення знаходиться в доброму стані - Ма...

De închiriat comercială Kyiv

Druzhby Narodiv pța.
10 USD/pe obiect
207
Харчове підприємство чи заклад харчування. У минулому кухня-їдальня 207 кв.м. Есть отдельный вход со двора. 450грн/м.кв з урахуванням ком.услуг й НДС. + Опалення додатково Можливий торг #2558

De închiriat comercială Borshchahivska

Borshchahivska str.
9 USD/pe obiect
262
Аренда офиса класса Б+ в БЦ «Бизон» по ул. Борщаговская 192. Open-space, 400 м2, высота потолков 3,3 м, очень светлое, просторное помещение, по всему периметру - окна! Качественный ремонт, в стиле – l...

De închiriat comercială Kyiv

Botkina str.
9 USD/pe obiect
194
Здаються офісні приміщення в БЦ "Successful House" по вулиці Боткіна 4А (3 хв до метро Політехнічний інститут) 194 кв.м. Кабінетна система 4 пов. Будівлі (права частина) Ціна: 400 грн. за 1 кв.м...

De închiriat comercială Kyiv

Stetsenka str.
9 USD/pe obiect
188
ОРЕНДА Торгово - Офісний центр Q10 КИЇВ, Подільський р-н, ФАСАД вул. Стеценка, 30, 1200 кв.м. open space Метро: Академмістечко та Нивки, 8 хв. 400 тис. кв.м. торгових площ в 100м Ашан, Епіцентр, Новус...

De închiriat comercială Kyiv

Botkina str.
9 USD/pe obiect
200
Здаються офісні приміщення в БЦ "Successful House" по вулиці Боткіна 4А (3 хв до метро Політехнічний інститут) 210 кв.м. Кабінетна система - 1 велика кімната, 3 маленьких Цокольний пов. Будівлі (ц...