Rielt.org

Продаж 3кімнатної квартири."Даманський". Дуже зручна локація!

Marshaka st., c.Kryvyi Rih, Dnipropetrovsk reg., Ucraina

De vânzare

1 lună în urmă
3 camere
etaj 2 din 9
63/44/7 m²

16.000 USD/pe obiect

254 USD/

Prezentare generală

Nr. camere

3

Pardoseală/Număr etaje

2 /9

Descrierea proprietății

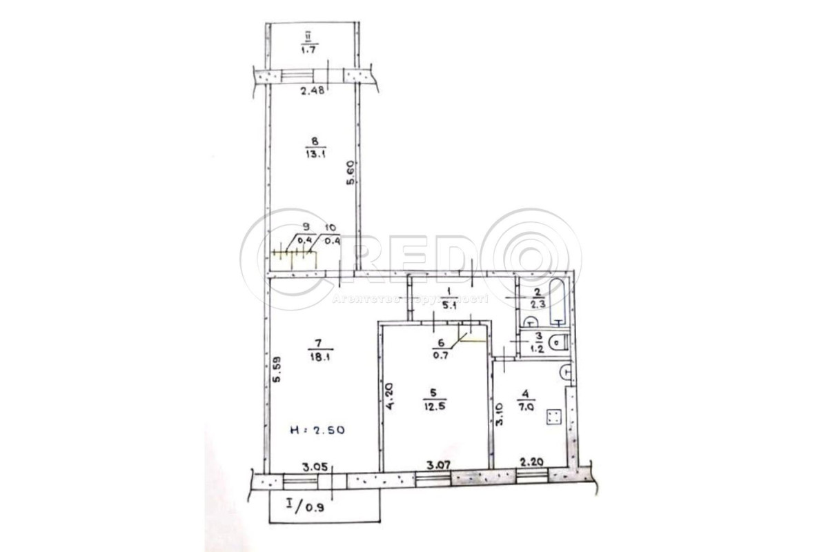
Пропонуємо до продажу 3кімнатну квартиру у Тернівському
районі. Зручне розташування вулиця Ботанічна,6 ( раніше Маршака) відносно транспортної розв'язки мікрорайону.
А також поряд одна із принад нашого міста Криворізький
ботанічний сад НАН України.

Про об'єкт:
- 2 поверх 9типоверхового будинку.
- загальна площа 63,1 м.кв.
- житлова площа 43,7м.кв.
- без маленьких кімнат : 18,1 + 13,1 + 12,5 м.кв.
- маємо балкон та лоджію, засклені.

Планування об'єкту:
- квартира двостороння, не кутова.
- вітальня облаштована кондиціонером.
- одна спальня ізольована.
- друга має вхід із вітальні.
- санвузол роздільний з бойлером.
- вільний доступ до квартири без "перегородок".

Особливості об'єкту:
- будинок розташовано на розі вулиць Маршака, Доватора,
Адмірала Головка.
- віддалена територія від проїжджої частини вулиці
гарно упорядкована зеленими насадженнями.
- приємний краєвид з вікон.
- чисте, акуратне подвір'я.
- закритий під'їзд з тихою ліфтовою системою.
- перший поверх займають комерційні об'єкти,
а саме магазини, клініка, аптека, банкомат.

Локація:
- будинок рівновіддалений, 2-3 хвилини, від зупинок
громадського транспорту : 228 автобус, 231, 15, 16, 18, 83.
- поряд Пологове відділення 7-ї міськлікарні.
- повний спектр магазинів популярних торгових марок
АТБ, Варус, Єва, Карамелька та інші, аптеки, кафе, ринок,
відділення Київстар, нотаріальна контора.
- загальноосвітні школи № 110 та № 116, дитячий садок №23.

Ціна на сьогодні 16 000$
тел. 067 982 17 19

Detalii proprietate

ID proprietate

Suprafață totală

Suprafață locuibilă

Suprafață bucătărie

Balcon

Baie

29733

63.1 m²

43.7 m²

7 m²

balcon + logie

separat

Adresă/Locația proprietății

Adresă

Oraș/localitate

Regiune

Marshaka st.

c.Kryvyi Rih

Dnipropetrovsk

Cartier/Zonă

Țară

Тернівський

Ucraina

Dotări și facilități

Obțineți mai multe informații
Агентство недвижимости CREDO