Rielt.org

Продаж 3-х кім. квартири вул. Соборності

Соборності , or.Kryvyi Rih, Ucraina

De vânzare

6 luni în urmă
3 camere
etaj 4 din 5
48/33/6 m²

10.500 USD/pe obiect

219 USD/

Prezentare generală

Nr. camere

3

Pardoseală/Număr etaje

4 /5

Descrierea proprietății

Продаж 3-х кім. квартири вул. Соборності

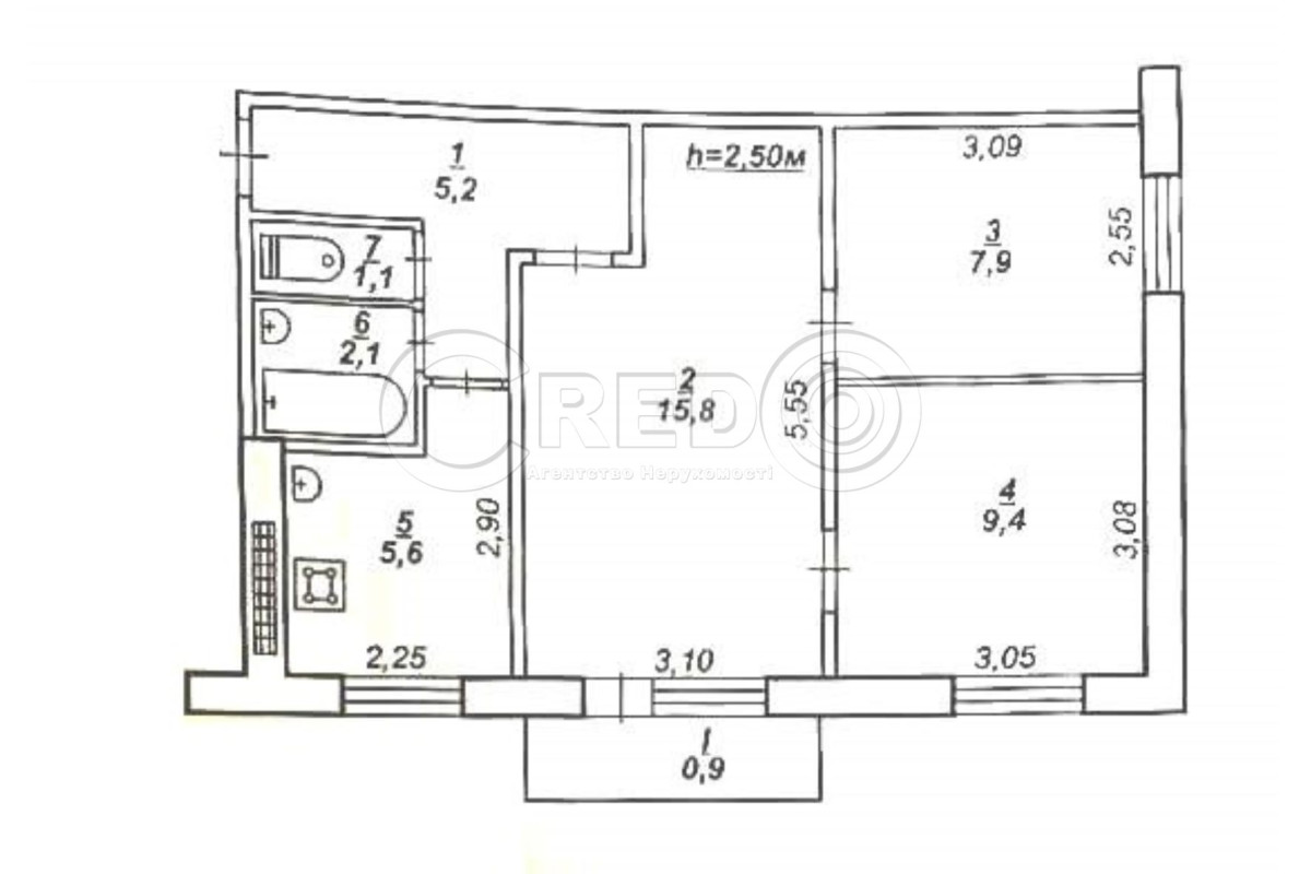
Про об’єкт:
- Квартира розташована на 4/5-ти поверхового будинку.
- Загальна площа 48 кв.м.
- Житлова 33,1кв.м.
- Кухня 5,6кв.м.
- Висота Н - 2.50м.

Планування об’єкту:
Квартира кутова, одна кімната прохідна, один балкон.

Особливості квартири:
Повністю поміняні вікна, замінені труби м/пл., бойлер, встановлені лічильники на світло, газ та воду.

Об'єкти поруч:
- Зручне місце розташування
- Великий жилий масив
- Школа, Дитячий садок
- Поряд магазини, аптеки, зупинка, та інше.

Ціна 10 500у.о.

За будь-якими питаннями за цією або схожими пропозиціями звертайтесь за номером телефону 068 862 43 57.
З повагою, команда Credo!

Detalii proprietate

ID proprietate

Suprafață totală

Suprafață locuibilă

Suprafață bucătărie

Balcon

Baie

29730

48 m²

33.1 m²

5.6 m²

balcon

separat

Adresă/Locația proprietății

Adresă

Oraș/localitate

Соборності

or.Kryvyi Rih

Țară

Ucraina

Dotări și facilități

Obțineți mai multe informații
Агентство недвижимости CREDO

Proprietăți similare

Proprietăți similare în această zonă

De vânzare apartament Kyiv

Yordanska str., or.Kyiv
11.500 USD/pe obiect
3 camere
62/46/9 m²
Продам свою 3-кімнатну квартиру на 5/9 поверсі, 62м2. В 7 хв пішки до метро Оболонь, поруч є супермаркети, школа, лікарня, ТРЦ Dream Yellow в 15 хвилинах пішки. Квартира тепла, не кутова. Простора, св...