Rielt.org

Na sprzedaż mieszkanie Revutskoho

Revutskoho ul., m.Kyiv, Ukraina

Na sprzedaż

3 miesiące temu
2 pokoje
piętro 19 z 25
72/35/14 m²

77 000 USD/za obiekt

1 069 USD/

Przegląd

Liczba pokoi

2

Podłoga/Liczba pięter

19 /25

Opis nieruchomości

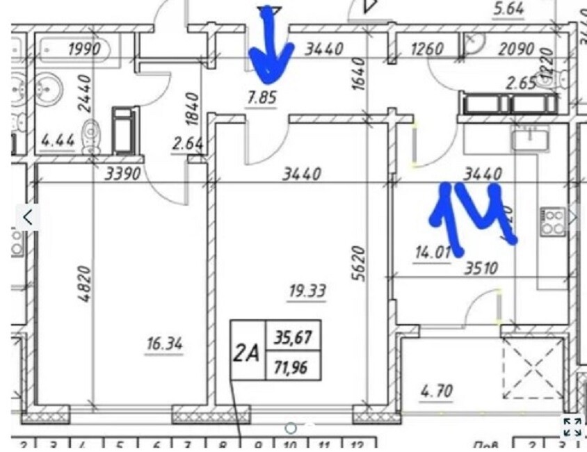
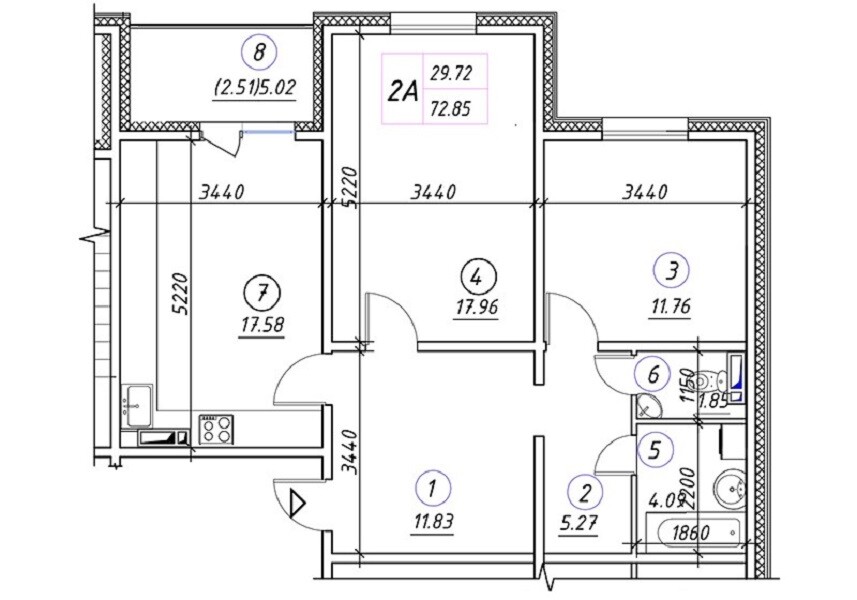
Продаётся двухкомнатная квартира. Дарницкий район, улица Ревуцкого, 54, метро Харьковская, ЖК Ревуцкий (сдан)

Продам 2х кімнатну . Вдале планування з багатьма перевагами: просторий хол (12 метрів), роздільні кімнати та велика кухня-вітальня з балконом, вид з якого відкривається на мальовниче озеро та паркову зону. Загальна площа квартири 72 метри. Лічильники на світло, воду та тепло;10 хв пішки до метро Харківська. Поруч вся інфраструктура супермаркети, зупинка, дит/сади, школи, торгові центри, озеро. Будинок Здано.Локація. Будинок розташований в 7 хвилинах пішки від метро Харківська. Охорона. Система відеонагляду в вашому смартфоні та конс єрж на першому поверсі. В перспективі планується зробити закриту територію з приватною охороною.

Szczegóły nieruchomości

ID nieruchomości

Powierzchnia całkowita

Powierzchnia użytkowa

Powierzchnia kuchni

31750

72 m²

35 m²

14 m²

Adres/Lokalizacja nieruchomości

Adres

Miasto/miejsc.

Województwo

Revutskoho ul.

m.Kyiv

Kyivska

Dzielnica/osiedle

Kraj

Darnytskyi

Ukraina

Cechy i udogodnienia

Uzyskaj więcej informacji
Нина Терещенко

Podobne nieruchomości

Podobne nieruchomości w tej okolicy

Na sprzedaż mieszkanie Revutskoho

Revutskoho ul., m.Kyiv
66 000 USD/za obiekt
2 pokoje
79 m²
ЖК РЕВУЦЬКИЙ. М.Харьковская 10 мин пешком. Вулиця Ревуцького д.54 а. 24 етаж 25 етажного дома. 3 ліфта. Тамбур на 2 квартири.Нова квартира. Тепла. Гарний вид з вікон

Na sprzedaż mieszkanie Kyiv

Revutskoho ul., m.Kyiv
73 000 USD/za obiekt
3 pokoje
70/60/10 m²

Na sprzedaż mieszkanie Kyiv

Revutskoho ul., m.Kyiv
72 000 USD/za obiekt
2 pokoje
72/18 m²
Продаж затишної 2-кімнатної квартири в ЖК Ревуцький, на перехресті вулиць Ревуцького та Вишняківської. Загальна площа квартири 72 кв.м. простора кухня 18кв.м. лоджія. Санвузел роздільний. Розташов...

Na sprzedaż mieszkanie Kyiv

Revutskoho ul., m.Kyiv
67 000 USD/za obiekt
2 pokoje
60 m²
Позняки. Харьковский. ул.Ревуцкого 19/1 Просторная квартира 61 кв.м. Удобная планировка, две лоджии застеклены. Жилое состояние. Стеклопакеты. Кухня с бытовой техникой: электроплита, вытяжка,холоди...

Na sprzedaż mieszkanie Kyiv

Revutskoho ul., m.Kyiv
65 000 USD/za obiekt
2 pokoje
56/28/8 m²
50410 - Продаж 2к квартири - Вулиця Ревуцького - Поверх 8/15 - Ремонт (Косметичний.) Продається 2-кімнатна квартира на Ревуцького 13, 8 поверх. АППС, 1992 р. Квартира вільна, готова до заселе...

Na sprzedaż mieszkanie Kyiv

Revutskoho ul., m.Kyiv
92 000 USD/za obiekt
2 pokoje
78/35/12 m²
52610 Без комісії. Власник. Продам простору 2-к квартиру в новому будинку на Осокорках, поруч з метро Харківська. Також в пішій доступності метро Позняки. Будинок 2021 року, ЖК "Ревуцький", вул...