Rielt.org

Do wynajęcia komercyjna Yevhena Sverstiuka

Yevhena Sverstiuka ul., m.Kyiv, Ukraina

Do wynajęcia

3 miesiące temu
3 pokoje
piętro 4 z 9
132 m²

1 801 USD/miesiąc

14 USD/

Przegląd

Liczba pokoi

3

Podłoga/Liczba pięter

4 /9

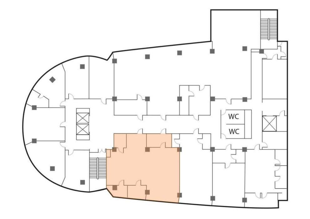
Opis nieruchomości

Оренда офісу загальною площею 132 кв.м., в Бізнес центрі "Лівобережний " Дніпровській район, за адресою: вулиця Євгена Сверстюка, 2А., метро Лівобережна.

Сучасний Бізнес центр, класу В;

три кабінети, офісний ремонт, кондиціонери;

Фасадний вхід, відеоспостереження, охорона, парковка;

Відмінна транспортна розв #39;язка, метро Лівобережна 2 хвилини пішки;

Можливість реєстрації юридичної адреси

Орендна ставка: 600 грн/ кв.м., включаючи експлуатацію + плюс комунальні

Вартість оренди 79200 грн

Szczegóły nieruchomości

ID nieruchomości

Powierzchnia całkowita

31667

132 m²

Adres/Lokalizacja nieruchomości

Adres

Miasto/miejsc.

Województwo

Yevhena Sverstiuka ul.

m.Kyiv

Kyivska

Kraj

Ukraina

Cechy i udogodnienia

Uzyskaj więcej informacji
Ольга Дикая

Podobne nieruchomości

Podobne nieruchomości w tej okolicy

Do wynajęcia komercyjna Kyiv

Kostiantynivska ul., m.Kyiv
1 683 USD/za obiekt
3 pokoje
160 m²
Здається офіс у самому серці Подолу – вул. Костянтинівська, 18. 3 кабінети, два входи із двору, можливий ремонт. Відмінна розв'язка під будь-який бізнес. Дзвоніть та приходьте на перегляд, будемо рад...

Do wynajęcia komercyjna Kyiv

Instytutska ul., m.Kyiv
1 500 USD/za obiekt
4 pokoje
120 m²
Здам в оренду офіс на Липках, вул. Інститутська, 19-В (кут Шовковичної), Печерський р-н. Фасадний будинок та фасадний вхід у під'їзд. Поверх-2/4. Площа: 120 кв. 12 вікон (6 вікон на фасад вулиці),...

Do wynajęcia komercyjna Rustaveli Shota

Rustaveli Shota ul., m.Kyiv
1 478 USD/za obiekt
3 pokoje
122 m²
Оренда бару, кафе, ресторану, піцерії з генератором та окремим входом в центрі, м. Палац Спорту, Площа Л. Толстого, Печерськ, Бессарабка, ул. Еспланадна, Ш. Руставели 15б. Ідеальний варіант для розмі...

Do wynajęcia komercyjna Dniprovska

Dniprovska nabrz., m.Kyiv
1 956 USD/miesiąc
3 pokoje
100 m²
Оренда комерційного приміщення загальною площею 100 кв.м., в Дарницькому районі в ЖК "Great " за адресою: вулиця Дніпровська набережна 15К, найближче метро - Осокорки. Просторе приміщення здається В...

Do wynajęcia komercyjna Dniprovska

Dniprovska nabrz., m.Kyiv
1 484 USD/miesiąc
3 pokoje
104 m²
Пропонується в оренду затишний офіс по вул. Дніпровська Набережна 26 Ж, Дарницький район, ст.м. Осокорки в пішої доступності. Загальна площа 103,7 кв.м., БЦ, 16 поверх, нежитловий фонд. Охороняється о...

Do wynajęcia komercyjna Kyiv

Tychyny Pavla al., m.Kyiv
1 592 USD/miesiąc
4 pokoje
150 m²
Пропонуються в оренду два офісних приміщення в Дніпровському районі, метро Лівобоержна за адресою: проспект Тичини, 18Б, массив Березняки. Новий будинок, з гарним паркінгом (бомбосховище). Офіс про...