Rielt.org

En venta piso Zakrevskoho Mykoly

Zakrevskoho Mykoly c/, cd.Kyiv, Kyiv c., Ucrania

En venta

1 año hace
2 habitaciones
piso 1 de 25
72 m²

31.543 US$/por propiedad

438 US$/

Características generales

Núm. de habs.

2

Suelo/Número de pisos

1 /25

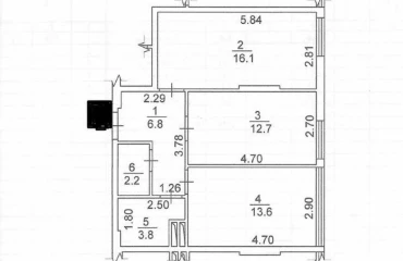
Descripción de la propiedad

Продам просторную 2-к квартиру в Милославичах (Троещина, ул. Закревского). Большая кухня и комнаты, а так же холл. Раздельный санузел.
Дом панельный, квартира с отделкой. Все соседи давно сделали ремонт.

Detalles de la propiedad

ID de propiedad

Superficie total

4119

72 m²

Dirección/Ubicación de la propiedad

Dirección

Ciudad/localidad

Zakrevskoho Mykoly c/

cd.Kyiv

Barrio/zona

País

Desnianskyi

Ucrania

Características y comodidades

Obtener más información
АН Синай

Propiedades similares

Propiedades similares en esta zona

En venta piso Yuvileinyi

Yuvileinyi cll.
26.500 US$/por propiedad
3 habitaciones
64/45/6 m²
АН Valion пропонує купити трикімнатну квартиру на Салтівці проспект Ювілейний. Квартира розташована у середині будинку, кімнати на дві сторони житловий стан. Просто продаж. Документи готові. Поруч уся...

Продаж 3-кімнатної квартири, Гданцівський парк

Martina Shymanovskoho c/
33.000 US$/por propiedad
3 habitaciones
70 m²
Жити і працювати в живописному місці - мрія кожного! Унікальний обєкт біля центрального входу в Гданцівський парк. 3-кімнатна квартира, вул. М. Шимановського, загальна площа 70кв.м., 1/3поверховог...

En venta piso Abakanska

Abakanska c/
35.154 US$/por propiedad
2 habitaciones
58 m²
Продаж від господаря. Терміновий продаж. Двохрівнева квартира. 30 000! 2 кімнатну квартиру, будинок із власним двором, в царському будинку, площа квартири 58,2 м2. Одно поверховий будинок зі своїм...

En venta piso Kindrata Vyshnivskoho

Kindrata Vyshnivskoho microd.
35.900 US$/por propiedad
3 habitaciones
71/42/8 m²
Продаж 3 кімнатної квартири покращеного планування мкрн. 5–й Зарічний. Розташована на 9 поверсі (є технічний поверх). Загальна площа - 71кв.м., житлова - 42,7кв.м., кухня - 8,7кв.м. Окремі три кімна...

En venta piso Zhytomyr

 
31.000 US$/por propiedad
3 habitaciones
60/7 m²
(№:11716) 3к. , Передмістя, Озёрное , 1/4, цегла. Санузел: бойлер.Номер телефона агента: +38(067)900-90-95 Номер объекта на нашем сайте: 11716 kvartira.zhitomir.ua

En venta piso Zhytomyr

Огиенко
36.000 US$/por propiedad
3 habitaciones
68/45/9 m²
(№:11318) 3к. , Польова, Огиенко, 7/9, цегла. Санузел: бойлер. Балкон(ы): без балкона.Номер телефона агента: +38(067)900-90-95 Номер объекта на нашем сайте: 11318 kvartira.zhitomir.ua